Casa indipendente di 210 mq con ampio giardino privato
- € 35.000
- 
                                5locali
- 
                                1bagni
- 
                                210 m2superficie
- 
                                7483riferimento
- 
                                Pieve San Giacomocomune
Descrizione
In vendita affascinante casa di campagna indipendente, immersa nel verde e dotata di un ampio giardino privato, ideale per chi cerca tranquillità e privacy senza rinunciare al comfort. L’immobile si presenta con un progetto di ridistribuzione degli spazi interni già approvato, che valorizza al massimo la vivibilità degli ambienti e la funzionalità della casa.
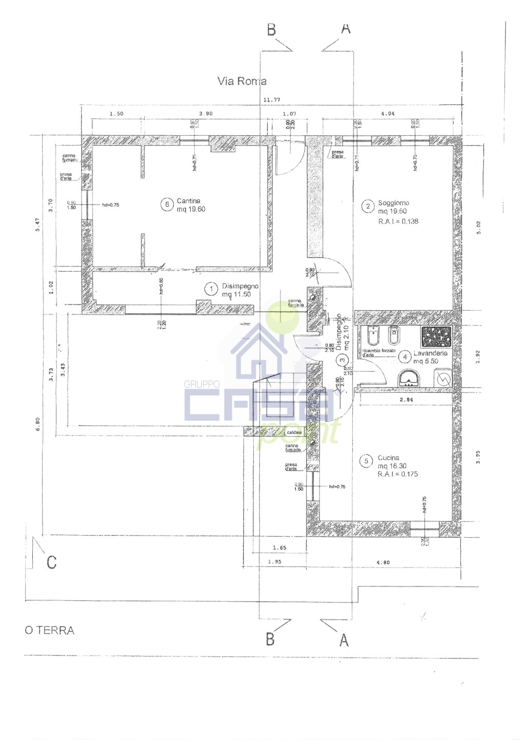
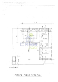
Il piano terra prevede la realizzazione di un'accogliente zona giorno composta da un ampio soggiorno, una cucina abitabile perfetta per la vita quotidiana e le occasioni conviviali, oltre a un comodo bagno con lavanderia e una spaziosa taverna, ideale per momenti di relax o come spazio multifunzionale.
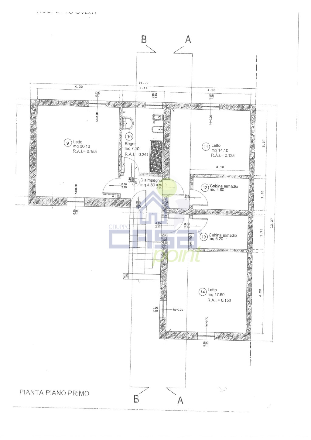
Al piano primo la zona notte sarà composta da tre camere da letto ben dimensionate, di cui due dotate di cabina armadio, e da un bagno che serve il piano, pensato per garantire praticità e comfort a tutta la famiglia.
Questa proprietà rappresenta una soluzione perfetta per chi desidera vivere nella quiete della campagna, in un contesto indipendente e con spazi ben organizzati, già pronti per essere personalizzati secondo le proprie esigenze.
Per poterla visionare senza impegno contattaci ai seguenti recapiti:
Casapoint Sospiro - Piazza Libertà 39
3517054028
sospiro@gruppocasapoint.it
Il presente testo ha il solo scopo illustrativo, può contenere errori e/o omissioni e non costituisce elemento contrattuale.                        
Dettagli Annuncio
Classe energetica
A+
A4
A3
A2
A1
A
B
C
D
E
F
G
Esente
Planimetria
Mappa
Informato per primo
 
- Appartamenti in vendita a Pieve San Giacomo
- Ville A Schiera in vendita a Pieve San Giacomo
- Ville Bifamiliari in vendita a Pieve San Giacomo
- Case Indipendenti in vendita a Pieve San Giacomo
- Capannoni in vendita a Pieve San Giacomo
- Ville Singole in vendita a Pieve San Giacomo
- Terreni Residenziali in vendita a Pieve San Giacomo
- Come preparare la tua casa per il servizio fotografico13/10/2025
- “Gli Straordinari”, emozioni e sorrisi con Cabrini all’evento di Casapoint30/09/2025
Ultimi annunci inseriti

Terreno Residenziale
Pieve San Giacomo

Appartamento
Pieve San Giacomo

Casa Indipendente
Pieve San Giacomo

Appartamento
Pieve San Giacomo

Casa Indipendente
Pieve San Giacomo
-medium.jpg)
Casa Indipendente
Pieve San Giacomo

Terreno Residenziale
Pieve San Giacomo

Villa Singola
Pieve San Giacomo
 
                                 
                                 
                                 
                                 
                                 
                                 
                                 
                                 
                                 
                                 
                                 
                                 
                                 
                                 
                                 
                                 
                                 
                                 
                                 
                                 
                                 
                                 
                                 
                                 
                                 
                                 
                                 
                                 
                                 
                                 
                                 
                                 
                                 
                                 
                                 
                                 
                                 
                                 
                                 
                                 
                                 
                                 
                                 
                                 
                                 
                                 
                                 
                                 
                                 
                                 
                                 
                                 
                                 
                                 
                                 
                                 
                                 
                                 
                                 
                                 
                                 
                                 
                                 
                                 
                                 
                                 
                                 
                                 
                                 
                                 
                                 
                                 
                                 
                                 
                                 
                                 
                                 
                                 
                                 
                                 
                                 
                                 
                                 
                                 
                                 
                                 
                                 
                                 
                                 
                                 
                                 
                                 
                                 
                                 
                                 
                                 
                                 
                                 
                                 
                                 
                                 
                                 
                                 
                                 
                                 
                                 
                                 
                                 
                                 
                                 
                                 
                                 
                                 
                                 
                                     
                                     
                                     
                                     
                                     
                                     
                                     
                                    