Casa con giardino privato da completare, a due passi dal centro
- € 130.000
-
3locali
-
1bagni
-
122 m2superficie
-
41524riferimento
-
Gualtiericomune
Descrizione
A Gualtieri, in posizione comoda al centro del paese, proponiamo una soluzione interessante per chi desidera una casa da personalizzare secondo i propri gusti, partendo da una base già avviata. Si tratta infatti di un’abitazione parzialmente ristrutturata, dove diversi lavori sono già stati eseguiti, ma che richiede di essere completata. Una proposta ideale per chi cerca una casa funzionale, con spazi ben distribuiti e uno sfogo esterno privato, senza rinunciare alla praticità della vita quotidiana.
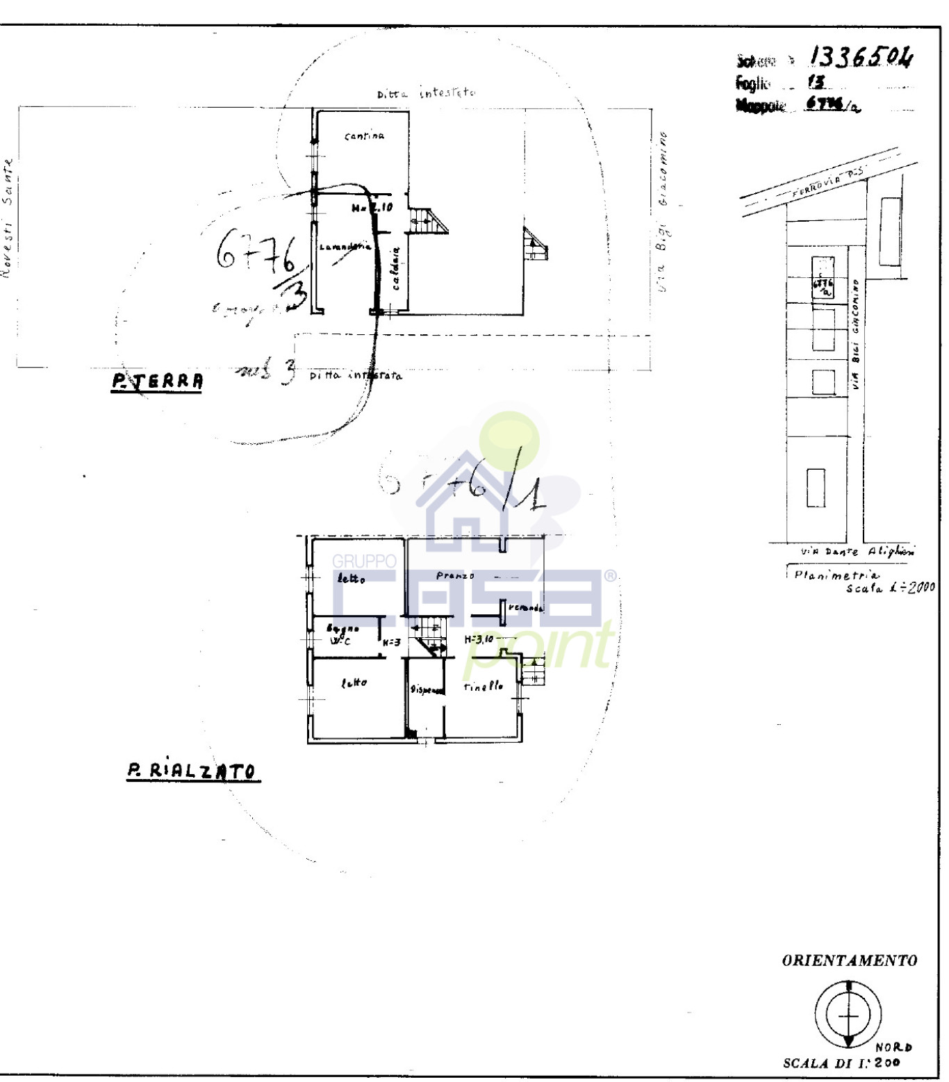
Entrando nell’abitazione si viene accolti da una zona giorno luminosa, con cucina a vista e soggiorno in ambiente unico, valorizzati da una grande vetrata che accompagna verso una veranda.
Da qui si accede direttamente al giardinetto privato, uno spazio raccolto e gestibile, ideale per momenti all’aperto. La casa si sviluppa prevalentemente su un unico piano, caratteristica sempre molto apprezzata, e tramite pochi gradini dalla zona giorno si raggiunge la zona notte, composta da due camere matrimoniali e un bagno.
Al piano inferiore, collegato internamente, troviamo il garage e una comoda lavanderia, spazi pratici che completano la funzionalità dell’immobile. All’esterno, oltre al giardino privato e recintato, l’ingresso è condiviso con l’abitazione adiacente tramite cancello automatizzato; sul retro è presente un’area cortiliva con copertura per due posti auto.
La posizione, a due passi dal centro, rende questa casa particolarmente interessante per chi desidera avere tutti i servizi a portata di mano, mantenendo però una dimensione tranquilla e riservata. Una soluzione adatta a chi cerca spazi ben organizzati, non eccessivi ma funzionali, con il valore aggiunto dell’area esterna e la possibilità di completare l’immobile secondo le proprie esigenze.
Ricordate che ogni immobile venduto dalla nostra agenzia, Casapoint Boretto, è garantito come esente da problemi urbanistico-catastali. Questo significa che chi lo acquista potrà arrivare sereno al rogito, protetto da sanzioni e vendite che saltano, senza il rischio di contestazioni future.
Se siete interessati a saperne di più su questo immobile potete mandare un messaggio su WhatsApp al numero 3477392200, indicandoci il numero di riferimento dell'annuncio 41524. Oppure potete chiamarci allo 0522964398.
Il presente testo ha il solo scopo illustrativo, può contenere errori e/o omissioni e non costituisce elemento contrattuale.
Il presente testo ha il solo scopo illustrativo, può contenere errori e/o omissioni e non costituisce elemento contrattuale.
Dettagli Annuncio
Classe energetica
A+
A4
A3
A2
A1
A
B
C
D
E
F
G
Esente
Planimetria
Mappa
Le nostre recensioni
Fonte: Google.comInformato per primo
- Case Indipendenti in vendita a Gualtieri
- Case Semindipendenti in vendita a Gualtieri
- Appartamenti in vendita a Gualtieri
- Ville A Schiera in vendita a Gualtieri
- Uffici in vendita a Gualtieri
- Complessi Misti in vendita a Gualtieri
- Porzione Di Case in vendita a Gualtieri
- Bar in vendita a Gualtieri
- Rustici E Casali in vendita a Gualtieri
- Terreni Residenziali in vendita a Gualtieri
"Straordinari 2025", alla Fondazione Giorgio Conti l'incasso della serata
06/11/2025Come preparare la tua casa per il servizio fotografico
13/10/2025
Ultimi annunci inseriti

Appartamento
Gualtieri
-full.jpg)
Terreno Residenziale
Gualtieri

Casa Indipendente
Gualtieri

Appartamento
Gualtieri

Casa Indipendente
Gualtieri

Casa Semindipendente
Gualtieri

Porzione Di Casa
Gualtieri

Casa Indipendente
Gualtieri
