APPARTAMENTO CON AUTORIMESSA
- € 55.000
-
5locali
-
1bagni
-
100 m2superficie
-
41058riferimento
-
Calvatonecomune
Descrizione
Siamo nel tranquillo contesto di Calvatone, proponiamo in vendita un interessante soluzione abitativa, in una zona molto tranquilla e riservata, caratterizzata da ampi spazi e ottima luminosità.
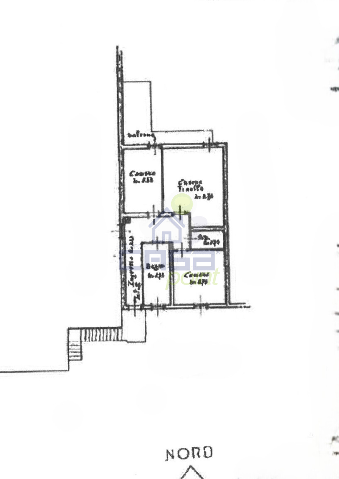
L'immobile si sviluppa su un unico livello, salendo le scale della corte comune, si accede all'abitazione, dove troviamo un ampio corridoio che ci porta al disimpegno centrale, esso collega poi tutte le camere; sulla sinistra troviamo un'ampia camera da letto singola, sulla destra un bagno finestrato disponente di doccia e vasca, procedendo abbiamo una generosa camera matrimoniale ed un vano ripostiglio.
Il punto forte dell'immobile è di certo l'ampio terrazzo, perfetto per momenti di relax all'aperto, pranzi e cene in compagnia, il quale si collega all' ampio salotto ed alla cucina, mediante una portafinestra, il che rende il terrazzo ancora più funzionale.
L'immobile è riscaldato mediante una caldaia a basamento, la quale alimenta i termosifoni in ghisa (sono presenti anche i termoconvettori), mentre per l'acqua sanitaria abbiamo uno scaldabagno.
Gli infissi sono in legno e vetro doppio.
Completa la proprietà un comodo garage, utile sia come posto auto che come spazio di deposito.
E' una soluzione ideale per chi desidera vivere in un ambiente sereno, con spazi esterni vivibili e la comodità dei principali servizi del paese, a breve distanza, essendo a circa 30 m dalla piazza principale di Calvatone.
Il presente testo ha il solo scopo illustrativo, può contenere errori e/o omissioni e non costituisce elemento contrattuale.
Dettagli Annuncio
Classe energetica
A+
A4
A3
A2
A1
A
B
C
D
E
F
G
Esente
Planimetria
Mappa
Le nostre recensioni
Fonte: Google.comInformato per primo
"Straordinari 2025", alla Fondazione Giorgio Conti l'incasso della serata
06/11/2025Come preparare la tua casa per il servizio fotografico
13/10/2025
Ultimi annunci inseriti

Cascina
Calvatone

Casa Indipendente
Calvatone

Terreno Agricolo
Calvatone

Casa Indipendente
Calvatone

Casa Indipendente
Calvatone
-medium.jpg)
Casa Indipendente
Calvatone

Casa Indipendente
Calvatone

Terreno Agricolo
Calvatone
