BILOCALE IN CENTRO PAESE CON BOX E CANTINA
- € 85.000
-
2locali
-
Ville Bifamiliaribagni
-
60 m2superficie
-
40789riferimento
-
Sant'Angelo Lodigianocomune
Descrizione
Proponiamo in vendita in centro paese in contesto residenziale signorile e ben curato, ampio bilocale in condizioni ottime.
L'immobile si trova al primo piano con ascensore ed è dotato di due balconi, box e cantina.
Composizione interna:
l'ingresso ci accoglie sul soggiorno con cucina a vista
le due grandi porte finestre consentono l'accesso diretto al balcone
il disimpegno divide la zona giorno dalla zona notte dove disponiamo di una spaziosa camera da letto matrimoniale con il proprio balcone
e di un bagno con doccia.
Lo stabile si presenta in perfetta condizioni in quanto negli ultimi due anni sono stati rifatti balconi, imbiancatura parti esterne e interne comuni, cambiati citofoni e cancelletto d'ingresso.
Completano la proprietà un pratico box con accesso tramite cancello elettrico e la cantina.
Attualmente l'appartamento è locato con regolare contratto con scadenza 19/01/2028.
Possibilità di arredo completo.
Per poter visionare senza impegno l’immobile contatta
Casapoint Sant’Angelo Lodigiano, Via Umberto I 50, Tel. 0371.216154 - Cell. 342.1389029
oppure tramite e-mail santangelolodigiano@gruppocasapoint.it
Trovi Casapoint Sant’Angelo Lodigiano anche sulle pagine FACEBOOK e INSTAGRAM sempre aggiornate con tante informazioni e novità.
Segui @casapoint_santangelolodigiano
Il presente testo ha il solo scopo illustrativo, può contenere errori e/o omissioni e non costituisce elemento contrattuale.
Dettagli Annuncio
Classe energetica
A+
A4
A3
A2
A1
A
B
C
D
E
F
G
Esente
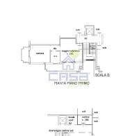
Planimetria
Mappa
Informato per primo
- Stabili in vendita a Sant'Angelo Lodigiano
- Ville A Schiera in vendita a Sant'Angelo Lodigiano
- Ville in vendita a Sant'Angelo Lodigiano
- Appartamenti in vendita a Sant'Angelo Lodigiano
- Box in vendita a Sant'Angelo Lodigiano
- Case Indipendenti in vendita a Sant'Angelo Lodigiano
- Case Semindipendenti in vendita a Sant'Angelo Lodigiano
- Ville Quadrifamiliari in vendita a Sant'Angelo Lodigiano
- Attici in vendita a Sant'Angelo Lodigiano
- Ville Singole in vendita a Sant'Angelo Lodigiano
- Ville Bifamiliari in vendita a Sant'Angelo Lodigiano
- Ville Trifamiliari in vendita a Sant'Angelo Lodigiano
- Terreni Residenziali in vendita a Sant'Angelo Lodigiano
- Immobili Commerciali in vendita a Sant'Angelo Lodigiano
- Porzione Di Case in vendita a Sant'Angelo Lodigiano
- Attività Commerciali in vendita a Sant'Angelo Lodigiano
- Capannoni in vendita a Sant'Angelo Lodigiano
- Magazzini in vendita a Sant'Angelo Lodigiano
- Terreni Commerciali in vendita a Sant'Angelo Lodigiano
- Uffici in vendita a Sant'Angelo Lodigiano
"Straordinari 2025", alla Fondazione Giorgio Conti l'incasso della serata
06/11/2025Come preparare la tua casa per il servizio fotografico
13/10/2025
Ultimi annunci inseriti

Appartamento
Sant'Angelo Lodigiano

Appartamento
Sant'Angelo Lodigiano

Villa Singola
Sant'Angelo Lodigiano

Box
Sant'Angelo Lodigiano

Appartamento
Sant'Angelo Lodigiano

Villa A Schiera
Sant'Angelo Lodigiano

Attico
Sant'Angelo Lodigiano

Villa
Sant'Angelo Lodigiano
