TRILOCALE FINEMENTE RISTRUTTURATO CON BOX
- € 145.000
-
3locali
-
2bagni
-
112 m2superficie
-
40779riferimento
-
Malagninocomune
Descrizione
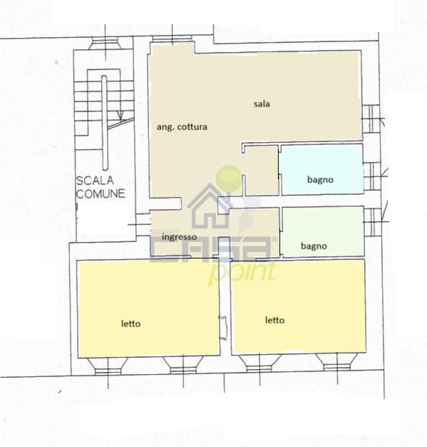
In tranquillo e curato contesto residenziale composto da poche unità abitative, proponiamo in vendita splendido trilocale di 112 mq, situato al primo piano e recentemente ristrutturato a nuovo.
L’abitazione si distingue per gli ambienti ampi e ben distribuiti ed è così composta:
-luminoso soggiorno con cucina,
-due grandi camere da letto,
-doppi servizi moderni
-spazi interni funzionali e rifiniti con materiali di qualità.
L’immobile è dotato di riscaldamento centralizzato e garantisce elevati standard di comfort e risparmio energetico grazie alla recente ristrutturazione.
Completa la proprietà un ampio box auto, incluso nel prezzo.
La soluzione ideale per chi cerca comfort, efficienza energetica e tranquillità, a pochi minuti da Cremona, nel comune di Malagnino.
PER ACQUISTARE QUESTA CASA, DEVI VENDERE LA TUA? CONTATTACI, TI GUIDEREMO PER UNA VENDITA SICURA E VELOCE.
Per maggiori informazioni o visite contattare: CasaPoint Cremona 2 Viale Trento Trieste 39- tel. 0372/803642 cell. 345/2838183 mail: cremonadue@gruppocasapoint.it.
Il presente testo ha il solo scopo illustrativo, può contenere errori e/o omissioni e non costituisce elemento contrattuale.
Dettagli Annuncio
Classe energetica
A+
A4
A3
A2
A1
A
B
C
D
E
F
G
Esente
Planimetria
Mappa
Le nostre recensioni
Fonte: Google.comInformato per primo
"Straordinari 2025", alla Fondazione Giorgio Conti l'incasso della serata
06/11/2025Come preparare la tua casa per il servizio fotografico
13/10/2025
Ultimi annunci inseriti

Appartamento
Malagnino

Casa Semindipendente
Malagnino

Appartamento
Malagnino

Villa
Malagnino

Villa Bifamiliare
Malagnino
-medium.jpg)
Appartamento
Malagnino
