STUDIO CON INGRESSO INDIPENDENTE E BOX
- € 220.000
-
3locali
-
2bagni
-
86 m2superficie
-
40692riferimento
-
Cremonacomune
Descrizione
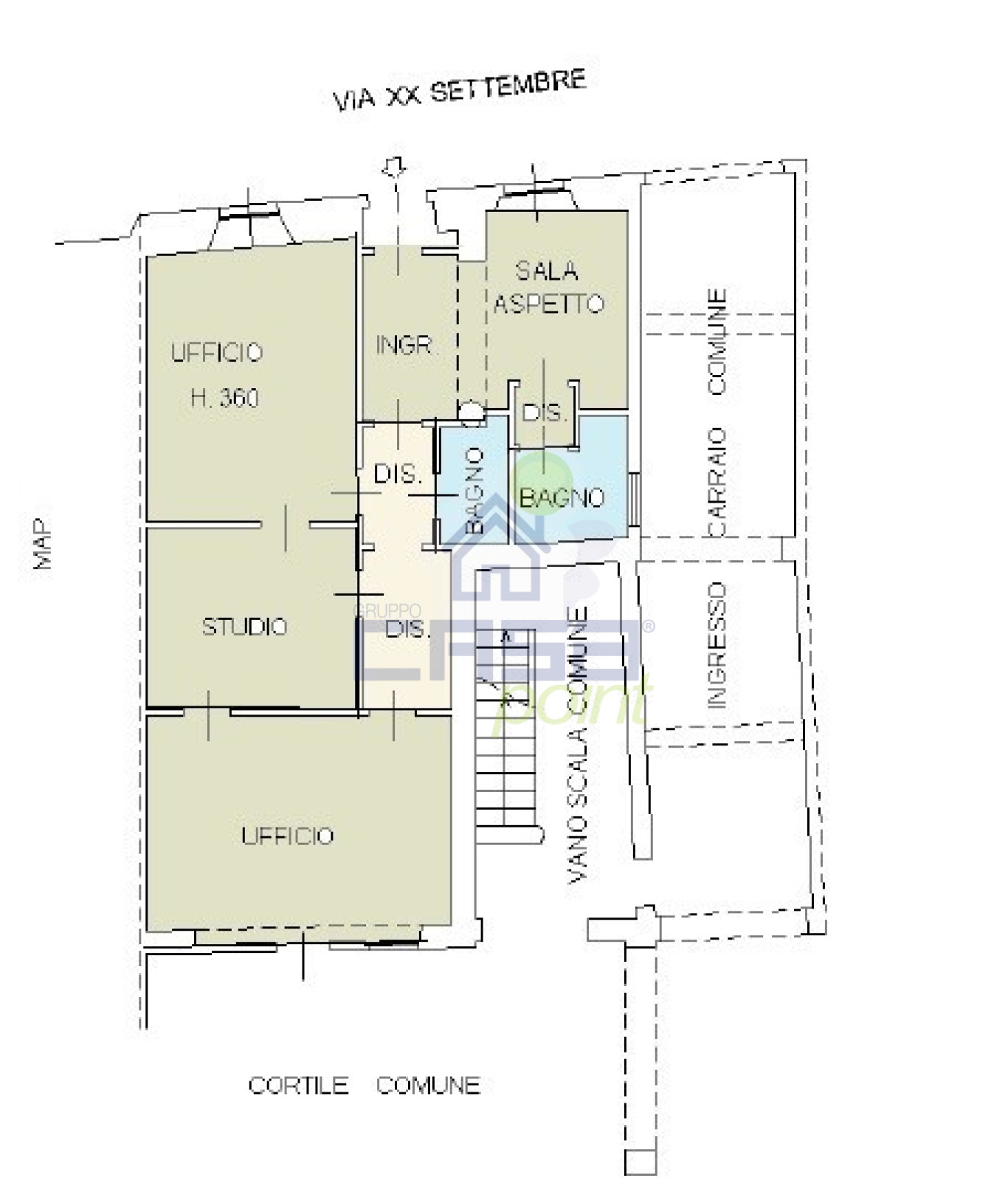
In posizione centrale e facilmente raggiungibile anche in auto, proponiamo questo immobile attualmente adibito a studio dentistico, dotato di ambienti comodi e ben organizzati, servito da un ingresso indipendente, uno secondario dal cortile interno, un box auto ed un'ampia cantina posti al piano seminterrato.
La disposizione dei locali è molto performante per uno studio professionale, partendo dall'ingresso indipendente dal marciapiede si entra in una zona adibita a sala d'attesa da cui si può accedere ai servizi ed ad un corridoio che conduce alle zone operative, che sono principalmente due, oltre ad uno terzo ambiente ad studio/archivio ed ad un ulteriore bagno.
Lo studio fa parte di un piccolo contesto con poche unità immobiliari e con spese condominiali contenute. Le utenze sono totalmente autonome.
Le finiture presenti sono degli anni '90, e l'impiantistica, sia elettrica che idraulica, è finalizzata all'uso delle apparecchiature mediche attualmente presenti nei due studi operativi riuniti (odontoiatrico e medicina estetica). Cl.Energ. "E" - EPgl,nren 263,09 kWh/m2a.
Per maggiori informazioni o visite, contattaci: Casapoint Cremona 1 - Corso XX Settembre, 11.
Telefono fisso: 0372 22644 | Cellulare: 348 856 2204 | E-mail: cremona@gruppocasapoint.it
Il presente testo ha il solo scopo illustrativo, può contenere errori e/o omissioni e non costituisce elemento contrattuale.
Dettagli Annuncio
Classe energetica
A+
A4
A3
A2
A1
A
B
C
D
E
F
G
Esente
Planimetria
Mappa
Le nostre recensioni
Fonte: Google.comInformato per primo
- Appartamenti in vendita a Cremona
- Case Indipendenti in vendita a Cremona
- Case Semindipendenti in vendita a Cremona
- Negozi in vendita a Cremona
- Uffici in vendita a Cremona
- Ville A Schiera in vendita a Cremona
- Porzione Di Case in vendita a Cremona
- Ville Singole in vendita a Cremona
- Ville Bifamiliari in vendita a Cremona
- Attività Commerciali in vendita a Cremona
- Tabaccherie in vendita a Cremona
- Capannoni in vendita a Cremona
- Laboratori in vendita a Cremona
- Box in vendita a Cremona
- Terreni Industriali in vendita a Cremona
- Bar in vendita a Cremona
- Ville in vendita a Cremona
- Magazzini in vendita a Cremona
- Stabili in vendita a Cremona
- Mansarde in vendita a Cremona
- Ristoranti in vendita a Cremona
- Attici in vendita a Cremona
- Immobili Commerciali in vendita a Cremona
- Laboratori in vendita a Cremona
"Straordinari 2025", alla Fondazione Giorgio Conti l'incasso della serata
06/11/2025Come preparare la tua casa per il servizio fotografico
13/10/2025
Ultimi annunci inseriti
-medium.jpg)
Appartamento
Cremona

Appartamento
Cremona

Appartamento
Cremona

Appartamento
Cremona

Appartamento
Cremona
-medium.jpg)
Appartamento
Cremona

Appartamento
Cremona

Villa A Schiera
Cremona
