Villa singola con giardino
- € 205.000
-
3locali
-
1bagni
-
160 m2superficie
-
40626riferimento
-
Robecco d'Ogliocomune
Descrizione
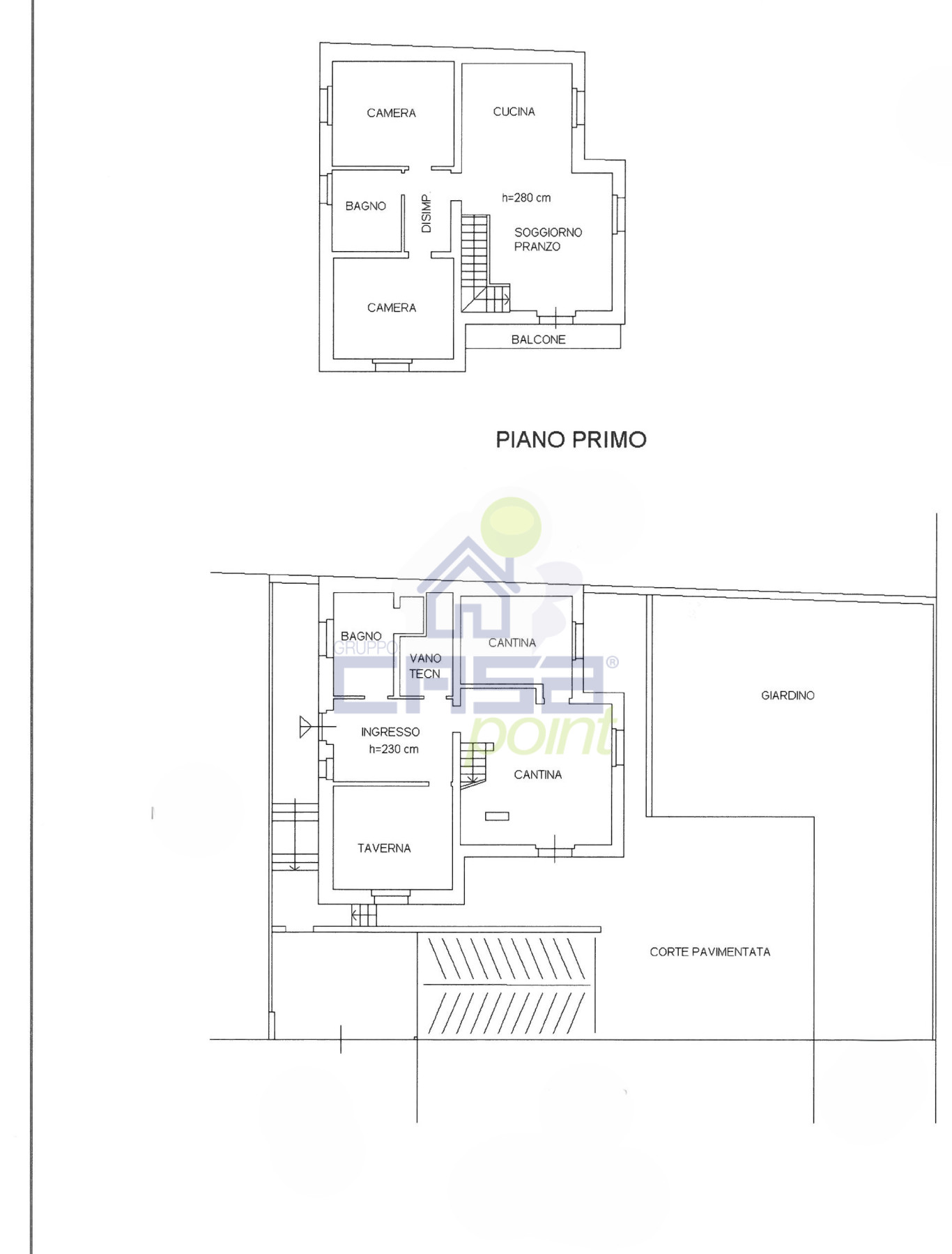
Casapoint Pontevico, vi propone in vendita a Robecco D'Oglio una villa singola L'immobile si sviluppa su due piani. Al piano terra troviamo l'ingresso, cantina, taverna, bagno e locale tecnico; al piano primo ampio soggiorno con cucina, disimpegno, due camere matrimoniali, bagno e un balcone. Completa la proprietà il cortile e il giardino privato, predisposizione fotovoltaico. L'immobile verrà venduto allo stato attuale come da fotografie. Per completare la villa manca i sanitari, ringhiera nel balcone, completamento impianto elettrico,
Il presente testo ha il solo scopo illustrativo, può contenere errori e/o omissioni e non costituisce elemento contrattuale.
Dettagli Annuncio
Classe energetica
A+
A4
A3
A2
A1
A
B
C
D
E
F
G
Esente
Planimetria
Mappa
Le nostre recensioni
Fonte: Google.comInformato per primo
- Appartamenti in vendita a Robecco d'Oglio
- Case Indipendenti in vendita a Robecco d'Oglio
- Rustici E Casali in vendita a Robecco d'Oglio
- Ville in vendita a Robecco d'Oglio
- Porzione Di Case in vendita a Robecco d'Oglio
- Ville A Schiera in vendita a Robecco d'Oglio
- Case Semindipendenti in vendita a Robecco d'Oglio
- Ville Singole in vendita a Robecco d'Oglio
"Straordinari 2025", alla Fondazione Giorgio Conti l'incasso della serata
06/11/2025Come preparare la tua casa per il servizio fotografico
13/10/2025
Ultimi annunci inseriti
-medium.jpg)
Appartamento
Robecco d'Oglio

Appartamento
Robecco d'Oglio
-medium.jpg)
Porzione Di Casa
Robecco d'Oglio

Villa Singola
Robecco d'Oglio

Villa Singola
Robecco d'Oglio
-medium.jpg)
Appartamento
Robecco d'Oglio
-medium.jpg)
Villa Singola
Robecco d'Oglio

Casa Indipendente
Robecco d'Oglio
