Fabbricato in centro paese
- Tratt. riservata
-
11locali
-
3bagni
-
735 m2superficie
-
40586riferimento
-
Pontevicocomune
Descrizione
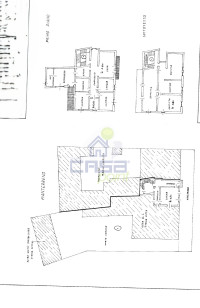
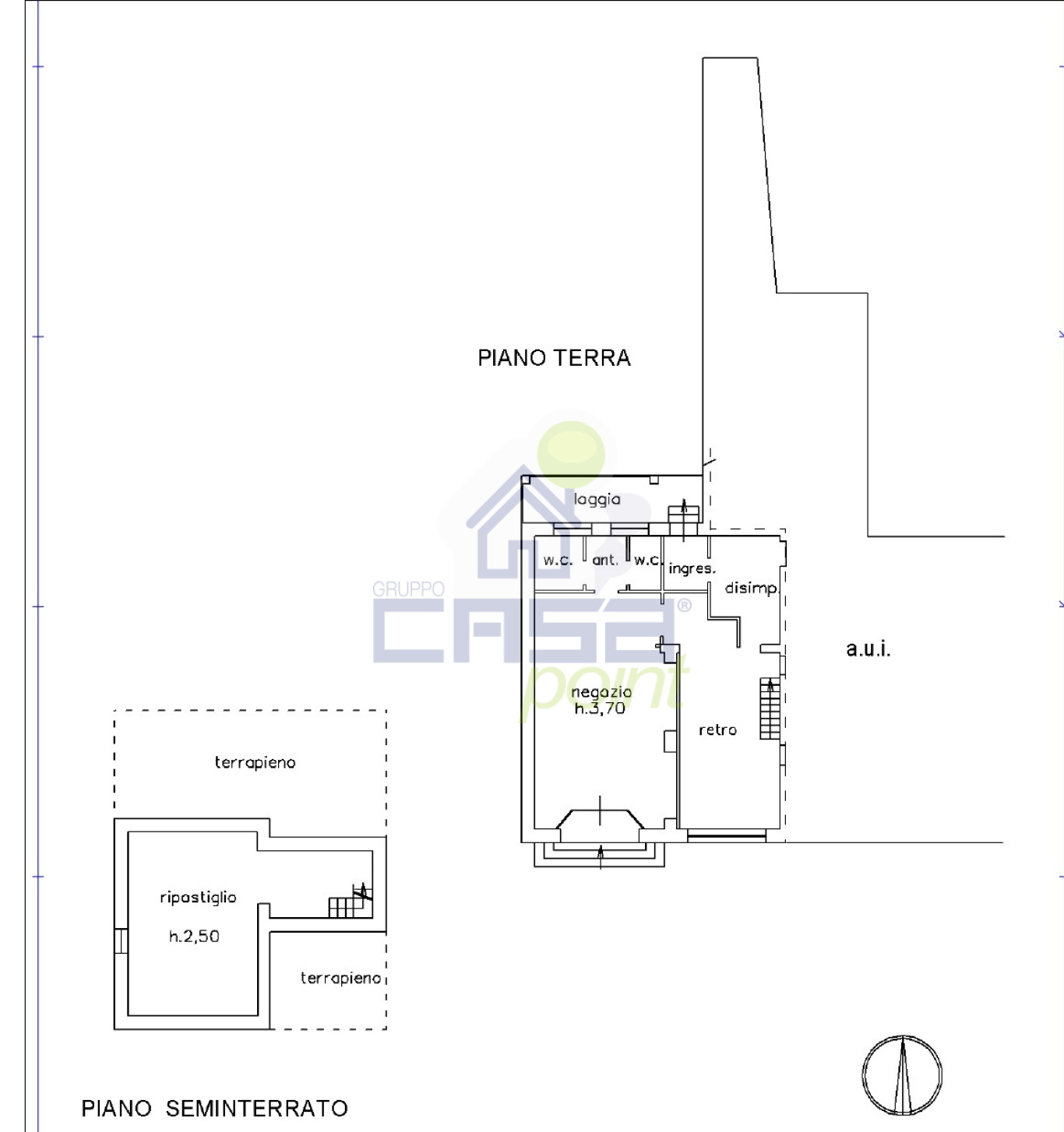
Casapoint Pontevico, vi propone in vendita a Pontevico, in zona centrale un fabbricato di ampia metratura composto da più unità:
Parte abitativa di circa 400 mq in parte già abitabile ( attualmente abitata dalla proprietà) e in parte al rustico da personalizzare.
Parte commerciale al piano terra di circa 115 mq con due occhi di vetrina e scantinato, attualmente a reddito.
All' interno del cortile retrostante troviamo la zona autorimesse con 4/5 posti macchina coperti.
Zona magazzino di circa 100 mq.
Zona laboratorio di circa 70 mq con un porticato.
Attestato prestazione energetica cl. G 234,20.
Il presente testo ha il solo scopo illustrativo, può contenere errori e/o omissioni e non costituisce elemento contrattuale.
Dettagli Annuncio
Classe energetica
A+
A4
A3
A2
A1
A
B
C
D
E
F
G
Esente
Planimetria
Mappa
Le nostre recensioni
Fonte: Google.comInformato per primo
- Porzione Di Case in vendita a Pontevico
- Appartamenti in vendita a Pontevico
- Magazzini in vendita a Pontevico
- Ville A Schiera in vendita a Pontevico
- Case Indipendenti in vendita a Pontevico
- Ville Bifamiliari in vendita a Pontevico
- Negozi in vendita a Pontevico
- Cascine in vendita a Pontevico
- Case Semindipendenti in vendita a Pontevico
- Ville Singole in vendita a Pontevico
- Attività Commerciali in vendita a Pontevico
- Bar in vendita a Pontevico
- Stabili in vendita a Pontevico
- Immobili Commerciali in vendita a Pontevico
- Terreni Residenziali in vendita a Pontevico
"Straordinari 2025", alla Fondazione Giorgio Conti l'incasso della serata
06/11/2025Come preparare la tua casa per il servizio fotografico
13/10/2025
Ultimi annunci inseriti

Appartamento
Pontevico

Appartamento
Pontevico
-medium.jpg)
Terreno Residenziale
Pontevico
-medium.jpg)
Villa Singola
Pontevico

Villa A Schiera
Pontevico

Porzione Di Casa
Pontevico

Porzione Di Casa
Pontevico
-medium.jpg)
Casa Indipendente
Pontevico
