QUADRILOCALE DI PREGIO COMPLETAMENTE RISTRUTTURATO
- € 120.000
-
4locali
-
2bagni
-
135 m2superficie
-
40538riferimento
-
Inverno e Monteleonecomune
Descrizione
Proponiamo in vendita ampio quadrilocale NUOVO, RISTRUTTURATO CON MATERIALI DI PREGIO, LIBERO SUBITO, in ottimo contesto residenziale e signorile, DA ULTIMARE CON LE RIFINITURE per PERSONALIZZARLO SU MISURA!
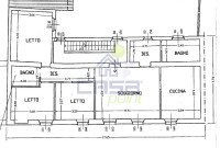
L’appartamento, UNICO SUL PIANO, è ubicato al secondo e ultimo piano ed è così composto:
- spaziosa cucina abitabile
- ampio e luminoso soggiorno
- 2 spaziose camere singole
- ampia camera matrimoniale
- 2 bagni da personalizzare con i sanitari.
Completano la proprietà un box singolo a piano terra e un locale accessorio sopra di esso.
La soluzione si presenta in ottime condizioni ed ha i seguenti punti di forza:
- Predisposizione aria condizionata
- Doppi servizi
- Spazioso box singolo
- Riscaldamento autonomo
- Pavimento in klinker
- Spazi ampi e luminosi
- In palazzina completamente ristrutturata
- Zona tranquilla e residenziale a pochi minuti di macchina dai maggiori servizi!
Possibilità di rifiniture a carico del costruttore.
Ottimo per chi cerca una soluzione spaziosa, tranquilla, nuova e completamente da personalizzare, ottima per famiglie.
Per poter visionare senza impegno l’immobile contatta
Casapoint Sant’Angelo Lodigiano, Via Umberto I 50, Tel. 0371.216154 - Cell. 342.1389029
oppure tramite e-mail santangelolodigiano@gruppocasapoint.it
Trovi Casapoint Sant’Angelo Lodigiano anche sulle pagine FACEBOOK e INSTAGRAM sempre aggiornate con tante informazioni e novità.
Segui @casapoint_santangelolodigiano
Il presente testo ha il solo scopo illustrativo, può contenere errori e/o omissioni e non costituisce elemento contrattuale.
Dettagli Annuncio
Classe energetica
A+
A4
A3
A2
A1
A
B
C
D
E
F
G
Esente
Planimetria
Mappa
Informato per primo
"Straordinari 2025", alla Fondazione Giorgio Conti l'incasso della serata
06/11/2025Come preparare la tua casa per il servizio fotografico
13/10/2025
Ultimi annunci inseriti

Casa Semindipendente
Inverno e Monteleone

Villa Singola
Inverno e Monteleone

Casa Semindipendente
Inverno e Monteleone

Casa Semindipendente
Inverno e Monteleone

Casa Semindipendente
Inverno e Monteleone
