TERRACIELO COMPLETAMENTE RISTRUTTURATO E PRONTO DA ABITARE
- € 79.000
-
3locali
-
1bagni
-
106 m2superficie
-
40467riferimento
-
Pizzighettonecomune
Descrizione
Nella tranquilla zona residenziale di Gera, proponiamo in vendita una CASA INDIPENDENTE disposta su due piani, perfetta per ospitare comodamente 4 persone
La proprietà è stata oggetto di una COMPLETA E RECENTE RISTRUTTURAZIONE, che la rende subito pronta per essere abitata senza necessità di ulteriori interventi.
IL TETTO, GLI IMPIANTI e i SERRAMENTI sono nuovi; gli infissi dotati di doppi vetri, assicurando un eccellente isolamento termico e acustico.
La casa si sviluppa su DUE PIANI, oltre a una comoda soffitta che può essere utilizzata come ripostiglio, deposito o come potenziale spazio aggiuntivo.
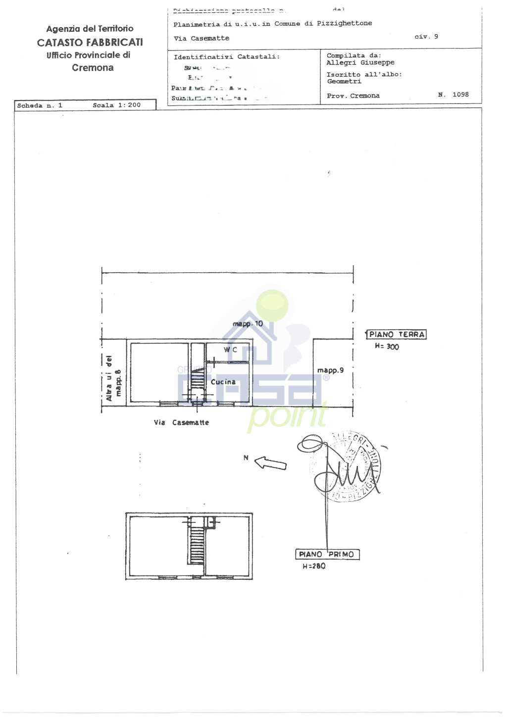
AL PIANO TERRA troviamo la zona giorno composta da cucina funzionale, sala ideale per ospitare la zona living e pranzo e un pratico bagno rifinito e nuovo.
IL PRIMO PIANO ospita la zona notte, composta da DUE camere da letto ampie, che offrono spazio e comfort sufficiente per un letto matrimoniale, armadiature generose e un angolo studio o relax.
Questa casa rappresenta la soluzione ideale per chi cerca l'indipendenza e la tranquillità di un contesto come Gera, senza però rinunciare al comfort e alla sicurezza di un immobile completamente ristrutturato con materiali e impianti moderni
Dotata inoltre di robusta Porta Blindata
Ideale per giovani Coppie o Famiglie: Goditi la comodità dell'indipendenza e l'emozione di entrare in una casa dove non dovrai pensare a nient'altro che arredare e vivere i tuoi spazi
Se questo annuncio ti ha incuriosito, contattaci per informazioni o per fissare una visita.
CASAPOINT PIZZIGHETTONE
Via Ungheria 10 – Pizzighettone (CR)
pizzighettone@gruppocasapoint.it ù
tel.– 0372 744282
Il presente testo ha il solo scopo illustrativo, può contenere errori e/o omissioni e non costituisce elemento contrattuale.
Dettagli Annuncio
Classe energetica
A+
A4
A3
A2
A1
A
B
C
D
E
F
G
Esente
Planimetria
Mappa
Informato per primo
- Appartamenti in vendita a Pizzighettone
- Porzione Di Case in vendita a Pizzighettone
- Complessi Misti in vendita a Pizzighettone
- Ville Singole in vendita a Pizzighettone
- Laboratori in vendita a Pizzighettone
- Ville in vendita a Pizzighettone
- Ville A Schiera in vendita a Pizzighettone
- Case Indipendenti in vendita a Pizzighettone
- Case Semindipendenti in vendita a Pizzighettone
- Ville Bifamiliari in vendita a Pizzighettone
- Stabili in vendita a Pizzighettone
- Terreni Residenziali in vendita a Pizzighettone
- Negozi in vendita a Pizzighettone
- Immobili Commerciali in vendita a Pizzighettone
- Attività Commerciali in vendita a Pizzighettone
- Uffici in vendita a Pizzighettone
- Cascine in vendita a Pizzighettone
"Straordinari 2025", alla Fondazione Giorgio Conti l'incasso della serata
06/11/2025Come preparare la tua casa per il servizio fotografico
13/10/2025
Ultimi annunci inseriti

Appartamento
Pizzighettone
-medium.jpg)
Appartamento
Pizzighettone
-medium.jpg)
Appartamento
Pizzighettone

Appartamento
Pizzighettone
-medium.jpg)
Casa Indipendente
Pizzighettone

Villa
Pizzighettone

Appartamento
Pizzighettone

Appartamento
Pizzighettone
