Casa dalle generose metrature
- € 130.000
-
4locali
-
2bagni
-
238 m2superficie
-
40419riferimento
-
Gualtiericomune
Descrizione
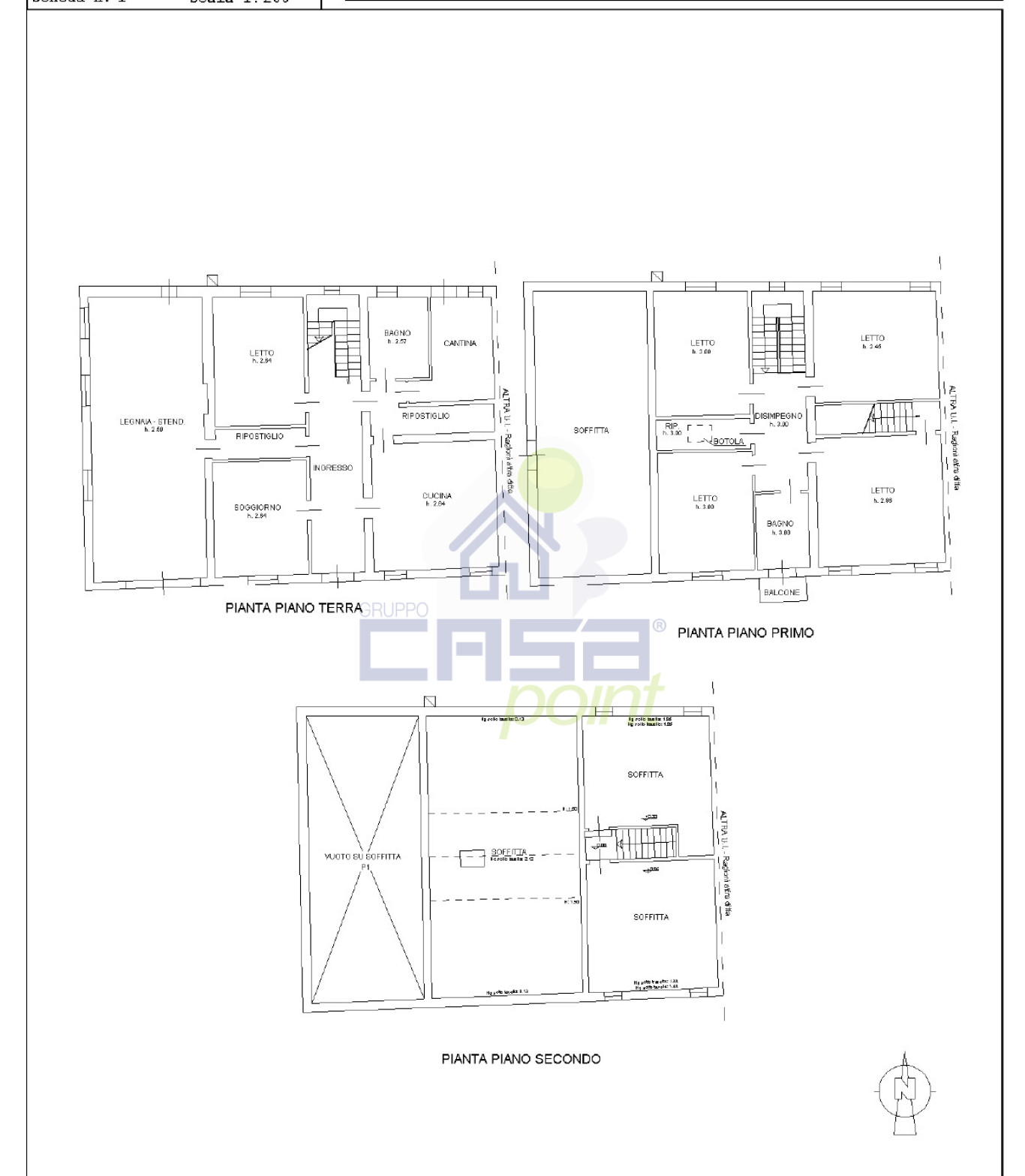
Casa libera su tre lati, disposta su due livelli, con ampi spazi interni ed esterni e un grande garage unico capace di ospitare fino a tre auto, ciascuna con la propria basculante indipendente.
Al piano terra troviamo una cucina molto ampia, un bagno di servizio, un salotto e un ripostiglio dal quale si accede direttamente a un ulteriore grande ambiente versatile: ideale come deposito, laboratorio, capannone o per molteplici utilizzi.
Salendo al piano superiore si incontrano grandi camere matrimoniali dalle metrature ormai introvabili e un secondo bagno, dotato di accesso a un balconcino con vista sul cortile interno.
L’immobile è servito dall’acquedotto, dispone di gas per il riscaldamento ed è ideale per chi cerca spazi generosi in una zona tranquilla.
Con alcuni lavori di ammodernamento, questa proprietà può diventare una splendida dimora, perfetta per famiglie o per chi necessita di ambienti ampi e funzionali.
Ricordate che ogni immobile venduto dalla nostra agenzia, Casapoint Boretto, è garantito come esente da problemi urbanistico-catastali. Questo significa che chi lo acquista potrà arrivare sereno al rogito, protetto da sanzioni e vendite che saltano, senza il rischio di contestazioni future.
Se siete interessati a saperne di più su questo immobile potete mandare un messaggio su WhatsApp al numero 3477392200, indicandoci il numero di riferimento dell'annuncio 40419. Oppure potete chiamarci allo 0522964398.
Il presente testo ha il solo scopo illustrativo, può contenere errori e/o omissioni e non costituisce elemento contrattuale.
Il presente testo ha il solo scopo illustrativo, può contenere errori e/o omissioni e non costituisce elemento contrattuale.
Dettagli Annuncio
Classe energetica
A+
A4
A3
A2
A1
A
B
C
D
E
F
G
Esente
Planimetria
Mappa
Le nostre recensioni
Fonte: Google.comInformato per primo
- Case Indipendenti in vendita a Gualtieri
- Appartamenti in vendita a Gualtieri
- Case Semindipendenti in vendita a Gualtieri
- Complessi Misti in vendita a Gualtieri
- Ville A Schiera in vendita a Gualtieri
- Uffici in vendita a Gualtieri
- Porzione Di Case in vendita a Gualtieri
- Bar in vendita a Gualtieri
- Rustici E Casali in vendita a Gualtieri
"Straordinari 2025", alla Fondazione Giorgio Conti l'incasso della serata
06/11/2025Come preparare la tua casa per il servizio fotografico
13/10/2025
Ultimi annunci inseriti

Appartamento
Gualtieri

Casa Indipendente
Gualtieri

Casa Semindipendente
Gualtieri

Porzione Di Casa
Gualtieri

Casa Indipendente
Gualtieri

Casa Indipendente
Gualtieri

Casa Semindipendente
Gualtieri

Casa Semindipendente
Gualtieri
