VILLETTA INDIPENDENTE IN PIAZZA A TORRE DE' PICENARDI
- € 130.000
-
11locali
-
2bagni
-
278 m2superficie
-
40413riferimento
-
Torre de' Picenardicomune
Descrizione
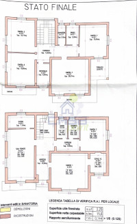
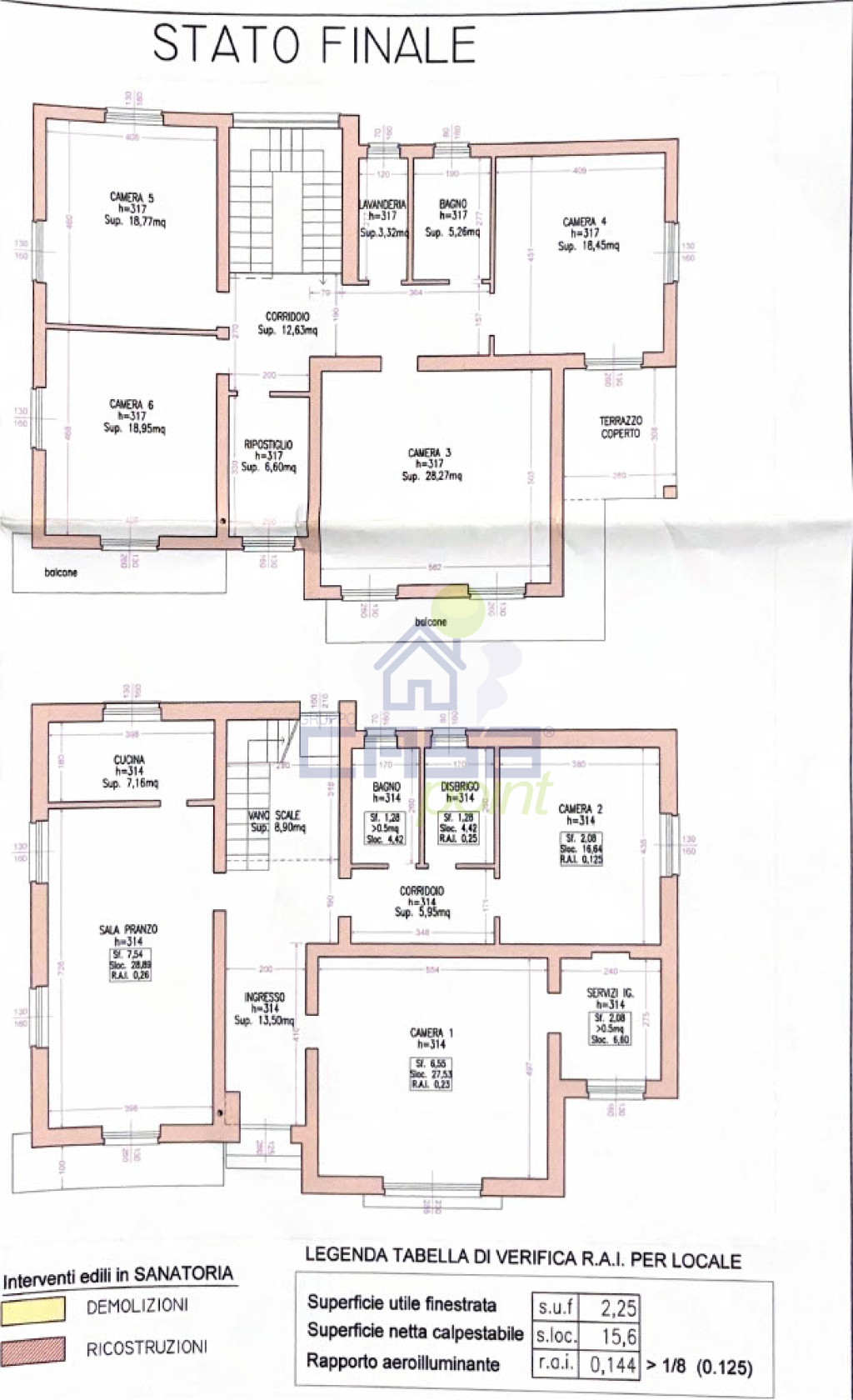
Ampia villetta anni 60 situata di fronte al castello di Torre de Picenardi, nel cuore del paese, dove è facile accedere ai servizi di cui dispone il paese.
La casa dispone di 11 vani: 4 ampie camere da letto, 2 bagni (al piano 1' presenza finiture degli anni 90'), ampio soggiorno, 1 studio, 1 lavanderia
- l'impianto di riscaldamento è funzionante ed ha i termosifoni in ghisa, alimentato da due caldaie a basamento.
-i serramenti sono in legno, con il doppio vetro.
-sono presenti 3 balconi, 1 al pian terreno e due al piano primo, dove si può ammirare il castello, simbolo del paese.
-il tetto è piu recente, rifatto intorno al 2010
- L'ampio giardino si sviluppa su 3 lati, sul retro è presente una parte cementata con cancello per accedervi con l'auto ed autorimessa singola ma spaziosa.
a fianco è presente un locale commerciale, adibito attualmente a magazzino.
Il presente testo ha il solo scopo illustrativo, può contenere errori e/o omissioni e non costituisce elemento contrattuale.
Dettagli Annuncio
Classe energetica
A+
A4
A3
A2
A1
A
B
C
D
E
F
G
Esente
Planimetria
Mappa
Le nostre recensioni
Fonte: Google.comInformato per primo
- Ville in vendita a Torre de' Picenardi
- Ville Singole in vendita a Torre de' Picenardi
- Appartamenti in vendita a Torre de' Picenardi
- Case Indipendenti in vendita a Torre de' Picenardi
- Cascine in vendita a Torre de' Picenardi
- Case Semindipendenti in vendita a Torre de' Picenardi
- Negozi in vendita a Torre de' Picenardi
"Straordinari 2025", alla Fondazione Giorgio Conti l'incasso della serata
06/11/2025Come preparare la tua casa per il servizio fotografico
13/10/2025
Ultimi annunci inseriti

Cascina
Torre de' Picenardi

Villa Singola
Torre de' Picenardi

Casa Indipendente
Torre de' Picenardi

Casa Indipendente
Torre de' Picenardi

Cascina
Torre de' Picenardi

Casa Indipendente
Torre de' Picenardi
-medium.jpg)
Casa Indipendente
Torre de' Picenardi

Casa Indipendente
Torre de' Picenardi
