CASA RURALE
- € 80.000
-
3locali
-
1bagni
-
300 m2superficie
-
40361riferimento
-
Gualtiericomune
Descrizione
Se sei alla ricerca di una casa da ristrutturare completamente, a proprio piacimento e organizzando gli spazi con il proprio gusto, questa è la soluzione ideale!
A Pieve di Gualtieri immersa nel verde con ampio terreno, vi proponiamo questa soluzione da personalizzare!
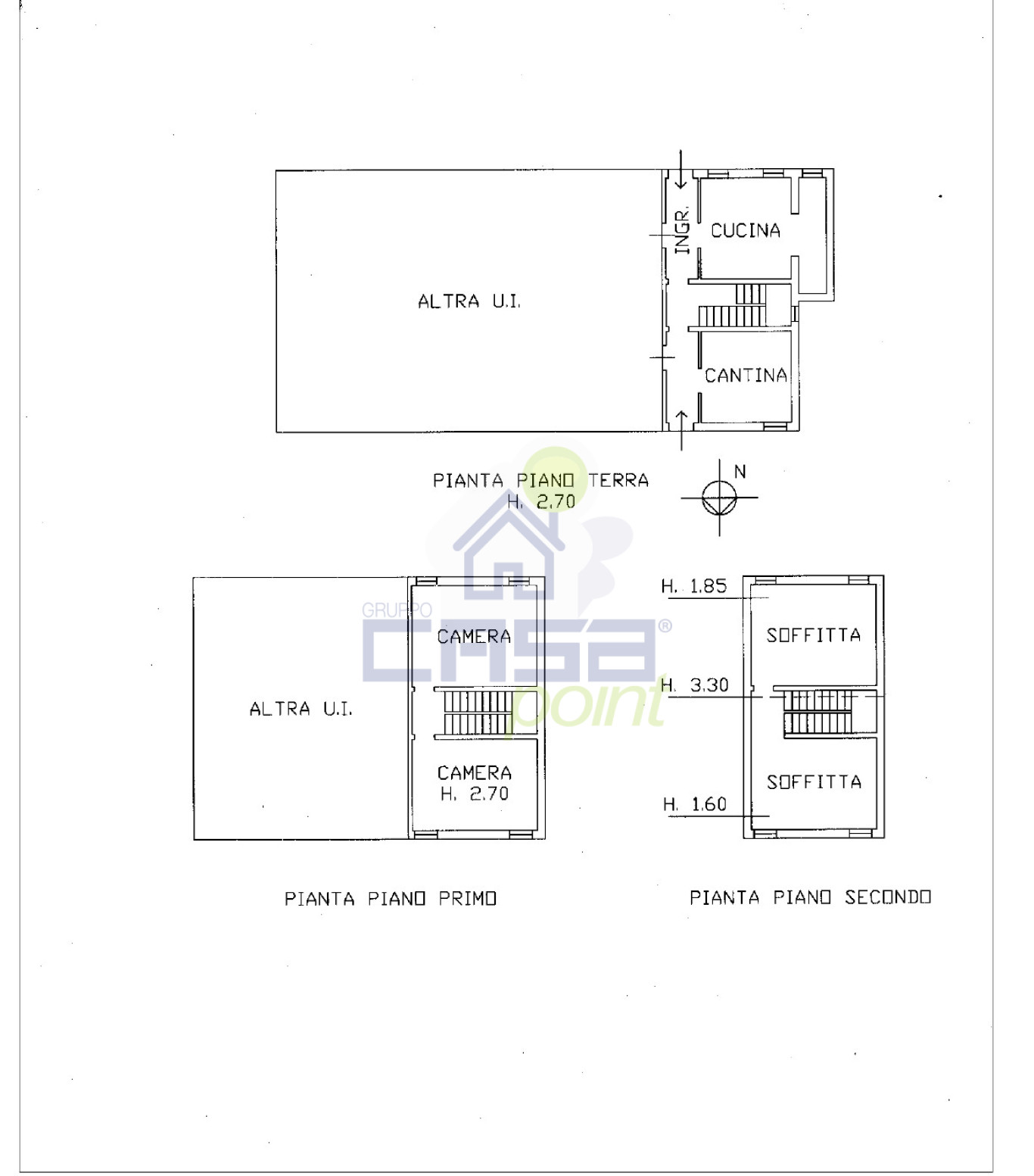
La casa date le grandi metrature vi permetterà di avere una sala separata da una cucina e un bagno al piano terra e 3 ampie camere da letto con un secondo bagno al piano superiore, con la possibilità di creare anche una mansarda abitabile.
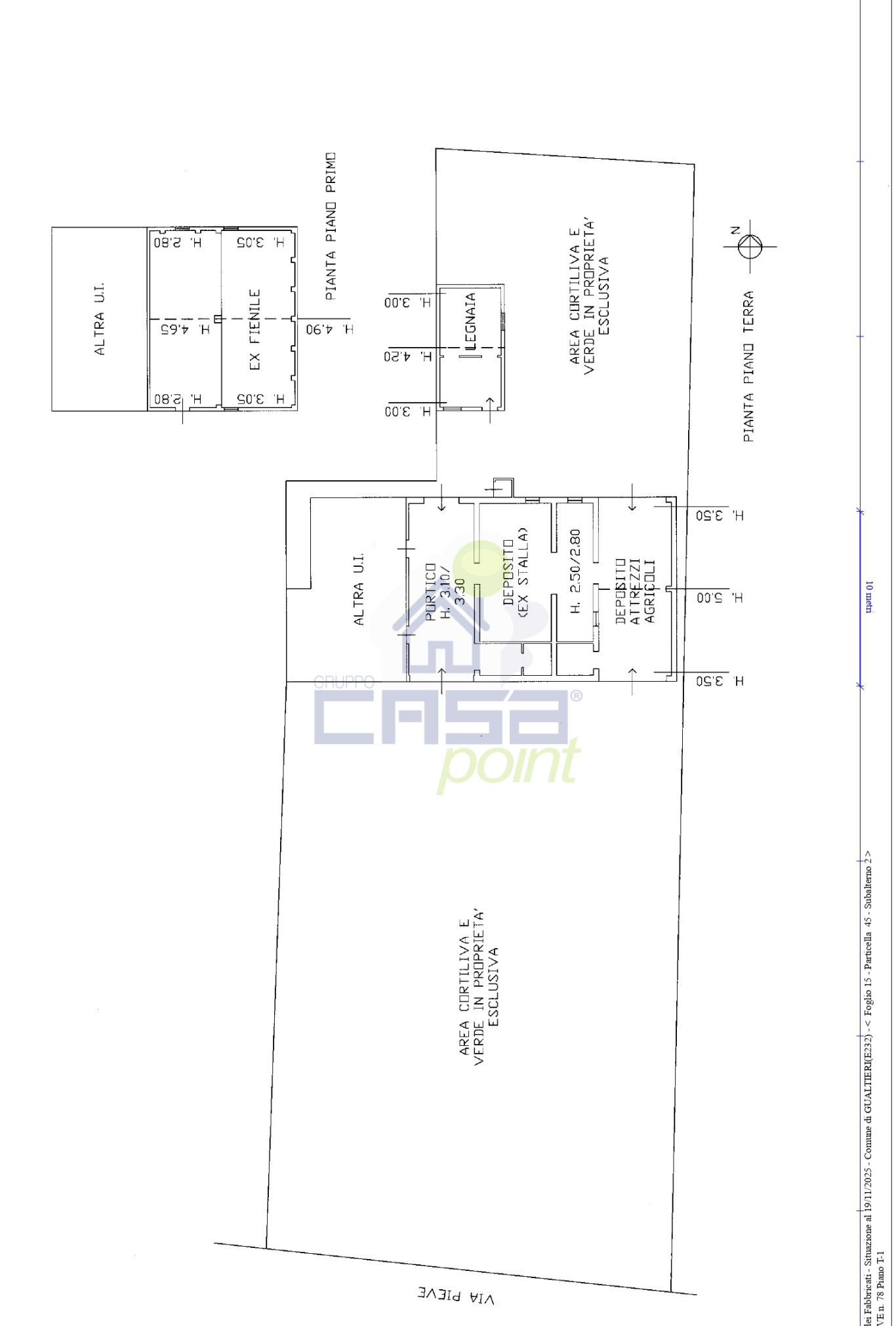
All'esterno potrete invece ricavare anche un ampio garage per due posti auto.
Ricordate che ogni immobile venduto dalla nostra agenzia, Casapoint Boretto, è garantito come esente da problemi urbanistico-catastali. Questo significa che chi lo acquista potrà arrivare sereno al rogito, protetto da sanzioni e vendite che saltano, senza il rischio di contestazioni future.
Se siete interessati a saperne di più su questo immobile potete mandare un messaggio su WhatsApp al numero 3477392200, indicandoci il numero di riferimento dell'annuncio 40361. Oppure potete chiamarci allo 0522964398.
Il presente testo ha il solo scopo illustrativo, può contenere errori e/o omissioni e non costituisce elemento contrattuale.
Il presente testo ha il solo scopo illustrativo, può contenere errori e/o omissioni e non costituisce elemento contrattuale.
Dettagli Annuncio
Classe energetica
A+
A4
A3
A2
A1
A
B
C
D
E
F
G
Esente
Planimetria
Mappa
Le nostre recensioni
Fonte: Google.comInformato per primo
- Case Indipendenti in vendita a Gualtieri
- Appartamenti in vendita a Gualtieri
- Case Semindipendenti in vendita a Gualtieri
- Complessi Misti in vendita a Gualtieri
- Ville A Schiera in vendita a Gualtieri
- Uffici in vendita a Gualtieri
- Porzione Di Case in vendita a Gualtieri
- Bar in vendita a Gualtieri
- Rustici E Casali in vendita a Gualtieri
"Straordinari 2025", alla Fondazione Giorgio Conti l'incasso della serata
06/11/2025Come preparare la tua casa per il servizio fotografico
13/10/2025
Ultimi annunci inseriti

Appartamento
Gualtieri

Casa Semindipendente
Gualtieri

Porzione Di Casa
Gualtieri

Casa Indipendente
Gualtieri

Casa Indipendente
Gualtieri

Casa Semindipendente
Gualtieri

Casa Semindipendente
Gualtieri

Casa Semindipendente
Gualtieri
