ROGGIONE, VILLA DI TESTA CON GIARDINO LIBERO SU TRE LATI
- € 240.000
-
5locali
-
3bagni
-
218 m2superficie
-
40332riferimento
-
Pizzighettonecomune
Descrizione
In ZONA RESIDENZIALE E TRANQUILLA, a pochi minuti da Pizzighettone, proponiamo una splendida VILLA DI TESTA con GIARDINO PRIVATO LIBERO SU TRE LATI, disposta su PIANO SEMINTERRATO, PIANO TERRA e PIANO PRIMO.
- Al PIANO TERRA si trova un BILOCALE composto da ZONA GIORNO, ANGOLO COTTURA, BAGNO FINESTRATO e CAMERA MATRIMONIALE, con possibilità di sfruttare l’AREA CORTILIZIA ANTISTANTE.
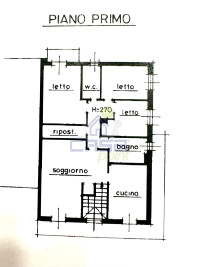
- Al PIANO PRIMO si sviluppa un QUADRILOCALE DI AMPIA METRATURA, con CUCINA ABITABILE, ZONA GIORNO, TRE CAMERE DA LETTO, DOPPI SERVIZI e RIPOSTIGLIO con accesso al sottotetto.
L’appartamento dispone di CALDAIA A CONDENSAZIONE recente e CLIMATIZZATORE IN POMPA DI CALORE con DUE SPLIT recentemente installati.
A completare la proprietà troviamo un BOX AUTO TRIPLO, collegato direttamente all’abitazione e in grado di ospitare fino a tre vetture, oltre a una CANTINA DI AMPIE DIMENSIONI, perfetta da utilizzare come TAVERNA O SPAZIO ACCESSORIO.
EDIFICATA ALLA FINE DEGLI ANNI NOVANTA, la casa si presenta in buone condizioni generali e necessita solo di PICCOLI LAVORI DI AMMODERNAMENTO, non di una ristrutturazione totale.
Soluzione IDEALE PER UN NUCLEO FAMILIARE NUMEROSO O PER DUE FAMIGLIE, grazie a IMPIANTI E UTENZE COMPLETAMENTE SEPARATI.
Per maggiori informazioni o per fissare una visita, CONTATTACI.
CASAPOINT PIZZIGHETTONE – Via Ungheria 10 – pizzighettone@gruppocasapoint.it – 0372 744282
Il presente testo ha il solo scopo illustrativo, può contenere errori e/o omissioni e non costituisce elemento contrattuale.
Dettagli Annuncio
Classe energetica
A+
A4
A3
A2
A1
A
B
C
D
E
F
G
Esente
Planimetria
Mappa
Informato per primo
- Appartamenti in vendita a Pizzighettone
- Porzione Di Case in vendita a Pizzighettone
- Complessi Misti in vendita a Pizzighettone
- Ville Singole in vendita a Pizzighettone
- Laboratori in vendita a Pizzighettone
- Ville in vendita a Pizzighettone
- Ville A Schiera in vendita a Pizzighettone
- Case Indipendenti in vendita a Pizzighettone
- Case Semindipendenti in vendita a Pizzighettone
- Ville Bifamiliari in vendita a Pizzighettone
- Stabili in vendita a Pizzighettone
- Terreni Residenziali in vendita a Pizzighettone
- Negozi in vendita a Pizzighettone
- Immobili Commerciali in vendita a Pizzighettone
- Attività Commerciali in vendita a Pizzighettone
- Uffici in vendita a Pizzighettone
- Cascine in vendita a Pizzighettone
"Straordinari 2025", alla Fondazione Giorgio Conti l'incasso della serata
06/11/2025Come preparare la tua casa per il servizio fotografico
13/10/2025
Ultimi annunci inseriti
-medium.jpg)
Appartamento
Pizzighettone

Appartamento
Pizzighettone
-medium.jpg)
Casa Indipendente
Pizzighettone

Appartamento
Pizzighettone

Appartamento
Pizzighettone

Appartamento
Pizzighettone

Casa Indipendente
Pizzighettone

Negozio
Pizzighettone
