Appartamento trilocale - luminoso, funzionale, con Garage e Cantina
- € 123.000
-
3locali
-
1bagni
-
70 m2superficie
-
40269riferimento
-
Viadanacomune
Descrizione
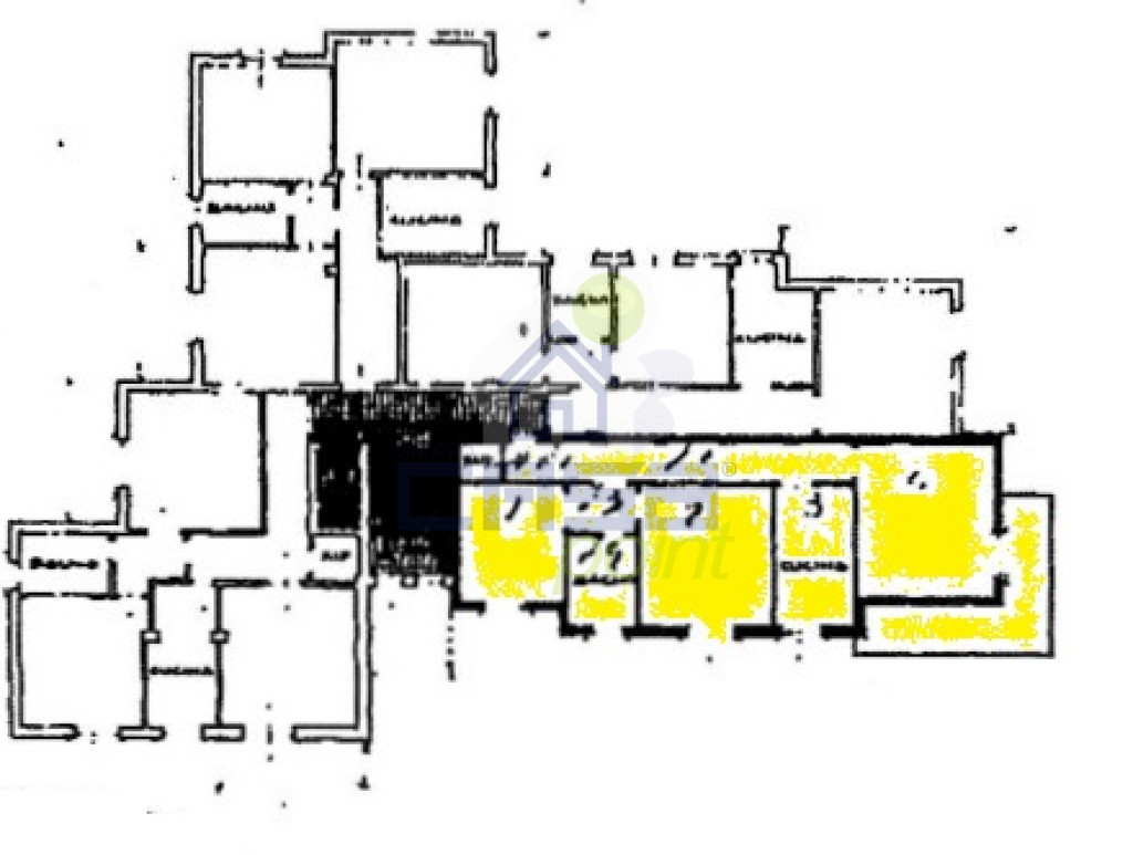
A Viadana, in contesto condominiale dotato di ascensore, proponiamo un appartamento posto al secondo piano, ideale per chi cerca spazi ben distribuiti e un ambiente confortevole.
L'ingresso si apre su un pratico corridoio, dove sulla destra è presente un comodo sgabuzzino. La zona notte è composta da due camere da letto matrimoniali e da un bagno finestrato, organizzata in modo da garantire privacy e tranquillità.
La zona giorno, ampia e luminosa, offre una cucina in open space e un soggiorno con accesso diretto al balcone ad angolo, perfetto per momenti di relax all'aperto.
Negli ultimi anni sono stati eseguiti lavori di ristrutturazione: nuovi infissi in alluminio con vetrocamera, pavimentazione, bagno rifatto, impianto elettrico e idrico rifatti nel 2023, caldaia sostituita nel 2024.
Completano la proprietà un box auto e una cantina, elementi che rendono l'appartamento particolarmente funzionale.
Soluzione ideale per famiglie, giovani coppie o per chi desidera un'abitazione moderna e ben servita.
Possibilità di acquistare l'arredamento.
Se siete interessati a saperne di più su questo immobile potete mandare un messaggio WhatsApp al numero: 0375 780915, indicandoci il numero di riferimento dell'annuncio e la vostra richiesta. Il numero di questo è annuncio è 40269
Il presente testo ha il solo scopo illustrativo, può contenere errori e/o omissioni e non costituisce elemento contrattuale.
Dettagli Annuncio
Classe energetica
A+
A4
A3
A2
A1
A
B
C
D
E
F
G
Esente
Planimetria
Mappa
Le nostre recensioni
Fonte: Google.comInformato per primo
- Appartamenti in vendita a Viadana
- Case Indipendenti in vendita a Viadana
- Immobili Commerciali in vendita a Viadana
- Terreni Residenziali in vendita a Viadana
- Attici in vendita a Viadana
- Mansarde in vendita a Viadana
- Ville A Schiera in vendita a Viadana
- Ristoranti in vendita a Viadana
- Ville Singole in vendita a Viadana
- Tabaccherie in vendita a Viadana
- Terreni Agricoli in vendita a Viadana
- Stabili in vendita a Viadana
- Negozi in vendita a Viadana
- Case Semindipendenti in vendita a Viadana
- Alimentari in vendita a Viadana
- Box in vendita a Viadana
- Capannoni in vendita a Viadana
- Porzione Di Case in vendita a Viadana
- Cascine in vendita a Viadana
- Ville Bifamiliari in vendita a Viadana
- Rustici E Casali in vendita a Viadana
- Attività Commerciali in vendita a Viadana
"Straordinari 2025", alla Fondazione Giorgio Conti l'incasso della serata
06/11/2025Come preparare la tua casa per il servizio fotografico
13/10/2025
Ultimi annunci inseriti

Capannone
Viadana

Appartamento
Viadana

Casa Indipendente
Viadana

Casa Indipendente
Viadana

Casa Indipendente
Viadana

Appartamento
Viadana

Casa Indipendente
Viadana

Appartamento
Viadana
