Villa singola di Nuova Costruzione - Classe A4
- € 280.000
-
4locali
-
2bagni
-
151 m2superficie
-
40227riferimento
-
Pomponescocomune
Descrizione
In una tranquilla zona residenziale del comune di Pomponesco, proponiamo una villa indipendente di nuova costruzione, ancora da ultimare, con possibilità di scegliere le finiture, con giardino fronte e retro, garage doppio e posto auto privato.
La casa fa parte di un piccolo complesso di 6 villette realizzate in una zona recintata, accessibile tramite cancello dalla strada comunale, questo rende il piccolo quartiere più sicuro e riservato ai soli residenti.
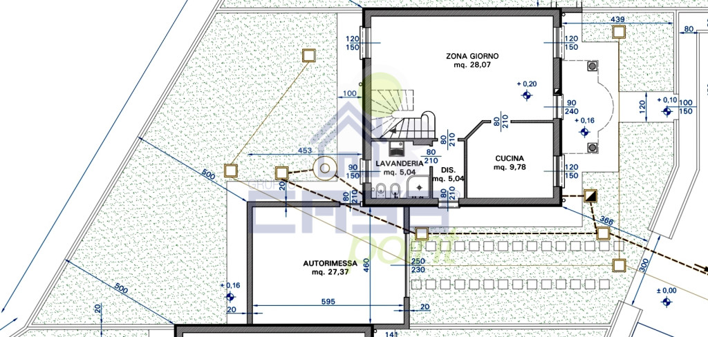
La soluzione, con ambienti ancora personalizzabili, si sviluppa su più livelli di circa 60 mq ciascuno:
Piano Terra:
Ampia zona giorno open space con cucina a vista
Accesso diretto al garage doppio e al giardino privato sul fronte e sul retro
Bagno di servizio
Primo Piano:
Camera matrimoniale con balcone
Camera singola con balcone
Secondo bagno
Mansarda abitabile e riscaldata, ideale come terza camera da letto, studio o spazio hobby.
ATTENZIONE! : le foto relative all' immobile finito sono di una villetta già ultimata e inserite al solo scopo dimostrativo di come potrebbe essere personalizzata la casa.
La casa offre ampi spazi, luminosità e la possibilità di essere completata secondo il proprio gusto e stile, rendendola una soluzione unica per chi cerca indipendenza e personalizzazione.
Finiture di capitolato comprese nel prezzo sono:
- cappotto isolante
- scala con pedate in marmo e ringhiera in ferro
- portoncino blindato
- porte interne in legno tamburato
- avvolgibili in metallo motorizzate
- zanzariere
- riscaldamento con pompa di calore, a pavimento
- pavimentazione in gres porcellanato con zoccolino in ceramica
- pannelli fotovoltaici con inverter e batterie di accumulo
- predisposizione impianto aria condizionata
Ottima opportunità per famiglie o giovani coppie che desiderano una casa moderna, funzionale e su misura.
Se siete interessati a saperne di più su questo immobile potete mandare un messaggio WhatsApp al numero: 0375 780915, indicandoci il numero di riferimento dell'annuncio e la vostra richiesta. Il numero di questo è annuncio è 40227
Il presente testo ha il solo scopo illustrativo, può contenere errori e/o omissioni e non costituisce elemento contrattuale.
Dettagli Annuncio
Classe energetica
A+
A4
A3
A2
A1
A
B
C
D
E
F
G
Esente
Planimetria
Mappa
Le nostre recensioni
Fonte: Google.comInformato per primo
"Straordinari 2025", alla Fondazione Giorgio Conti l'incasso della serata
06/11/2025Come preparare la tua casa per il servizio fotografico
13/10/2025
Ultimi annunci inseriti

Casa Indipendente
Pomponesco

Casa Indipendente
Pomponesco

Casa Indipendente
Pomponesco

Appartamento
Pomponesco
