ATTICO ESCLUSIVO IN VIA GASPARE PEDONE
- € 800
-
4locali
-
2bagni
-
120 m2superficie
-
40137riferimento
-
Cremonacomune
Descrizione
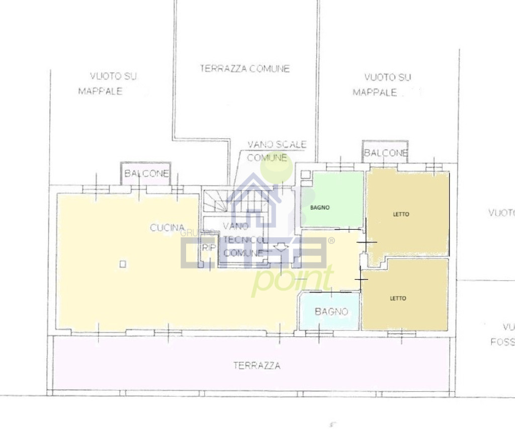
In elegante contesto condominiale proponiamo splendido attico esclusivo nel suo genere, unico appartamento al piano, che garantisce massima privacy e tranquillità.
L’immobile si apre su un ampio ingresso con porta blindata, che conduce all’eccezionale zona living panoramica, completamente vetrata e inondata di luce naturale grazie alle ampie vetrate a 360°.
La cucina parzialmente arredata, si integra perfettamente con il soggiorno, creando uno spazio raffinato e funzionale.
La zona notte è composta da due camere da letto, due bagni completi e un comodo disimpegno.
Punto di forza dell’abitazione è la terrazza spettacolare, di dimensioni davvero generose, accessibile dal soggiorno, perfetta per cene all’aperto, momenti di relax o per godere di una vista impareggiabile sulla città.
Dotazioni:
• Serramenti con doppi vetri
• Riscaldamento autonomo con caldaia dedicata
• Climatizzatore
• Piccolo box auto di pertinenza
Una soluzione esclusiva, luminosissima e ideale per chi desidera vivere in un ambiente elegante e riservato nel cuore della città.
Il presente testo ha il solo scopo illustrativo, può contenere errori e/o omissioni e non costituisce elemento contrattuale.
Dettagli Annuncio
Classe energetica
A+
A4
A3
A2
A1
A
B
C
D
E
F
G
Esente
Mappa
Le nostre recensioni
Fonte: Google.comInformato per primo

- Appartamenti in affitto a Cremona
- Uffici in affitto a Cremona
- Negozi in affitto a Cremona
- Immobili Commerciali in affitto a Cremona
- Box in affitto a Cremona
- Ville in affitto a Cremona
- Ville A Schiera in affitto a Cremona
- Attività Commerciali in affitto a Cremona
- Pasticcerie in affitto a Cremona
- Ville Singole in affitto a Cremona
- Attici in affitto a Cremona
Come preparare la tua casa per il servizio fotografico
13/10/2025“Gli Straordinari”, emozioni e sorrisi con Cabrini all’evento di Casapoint
30/09/2025
Ultimi annunci inseriti

Appartamento
Cremona

Appartamento
Cremona

Ufficio
Cremona

Appartamento
Cremona

Appartamento
Cremona

Appartamento
Cremona

Appartamento
Cremona

Appartamento
Cremona