PERSONALIZZAMI COME VUOI TU
- € 50.000
-
2locali
-
1bagni
-
95 m2superficie
-
40102riferimento
-
San Colombano al Lambrocomune
Descrizione
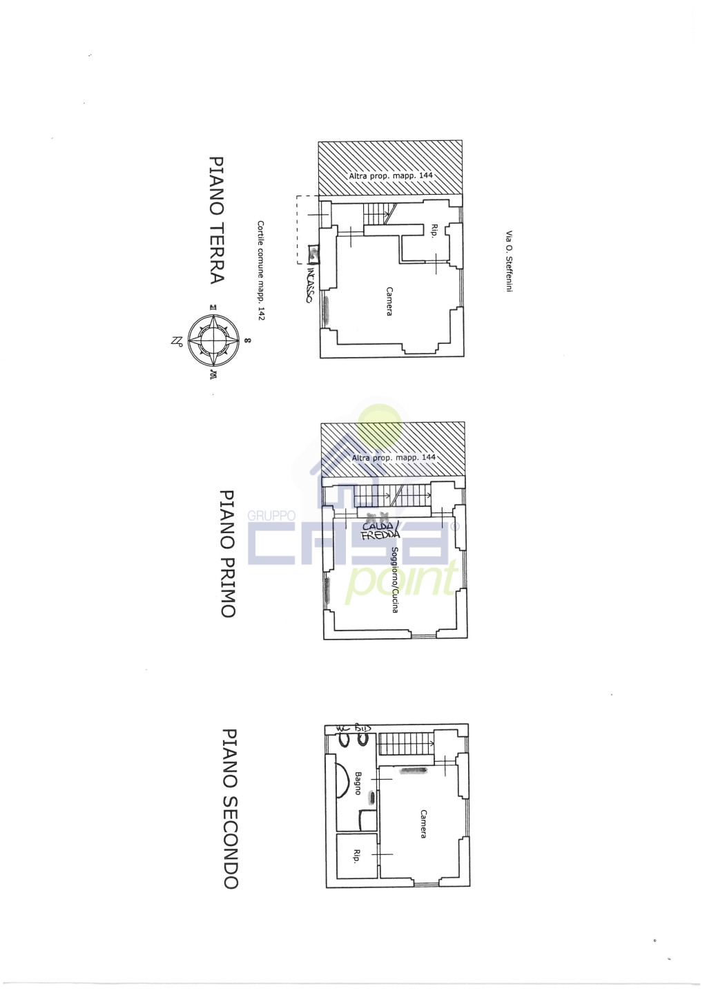
A soli 60 secondi a piedi dalla piazza principale e da tutti i servizi, proponiamo in vendita una spaziosa casa di corte di ben 95 mq, disposta su tre livelli e con ottime potenzialità di personalizzazione.
Composizione attuale:
Piano terra: ampio soggiorno con pratico ripostiglio
Primo piano: cucina abitabile
Secondo e ultimo piano: camera matrimoniale, secondo ripostiglio e bagno finestrato
Gli ambienti sono luminosi, ben distribuiti e offrono la possibilità di creare una seconda camera da letto, riorganizzando gli spazi nel seguente modo:
zona giorno open space con soggiorno e cucina al piano terra, camera al primo piano e mantenere la camera matrimoniale con bagno all’ultimo piano
La casa si presenta in condizioni abitabili ma richiede alcuni lavori di ammodernamento, offrendo così l’occasione di personalizzarla secondo il proprio gusto e le proprie esigenze.
Riscaldamento autonomo con caldaia esterna, nessuna spesa condominiale e disponibilità immediata rendono questa soluzione perfetta per chi cerca indipendenza, centralità e spazio, senza rinunciare alla tranquillità tipica delle corti.
Ottima anche come investimento o come prima casa per giovani coppie o single in cerca di un’abitazione ampia e funzionale nel cuore del paese.
Contattaci ora x per fissare un appuntamento gratuito e senza impegno al numero 348/2443777 oppure inviaci una mail all'indirizzo: sancolombano@gruppocasapoint.it
Il presente testo ha il solo scopo illustrativo, può contenere errori e/o omissioni e non costituisce elemento contrattuale.
Il presente testo ha il solo scopo illustrativo, può contenere errori e/o omissioni e non costituisce elemento contrattuale.
Dettagli Annuncio
Classe energetica
A+
A4
A3
A2
A1
A
B
C
D
E
F
G
Esente
Planimetria
Mappa
Informato per primo
- Ville in vendita a San Colombano al Lambro
- Case Semindipendenti in vendita a San Colombano al Lambro
- Appartamenti in vendita a San Colombano al Lambro
- Ville A Schiera in vendita a San Colombano al Lambro
- Stabili in vendita a San Colombano al Lambro
- Terreni Residenziali in vendita a San Colombano al Lambro
- Porzione Di Case in vendita a San Colombano al Lambro
- Rustici E Casali in vendita a San Colombano al Lambro
- Ville Bifamiliari in vendita a San Colombano al Lambro
- Immobili Commerciali in vendita a San Colombano al Lambro
- Terreni Agricoli in vendita a San Colombano al Lambro
- Ville Singole in vendita a San Colombano al Lambro
- Box in vendita a San Colombano al Lambro
- Cascine in vendita a San Colombano al Lambro
- Case Indipendenti in vendita a San Colombano al Lambro
- Ristoranti in vendita a San Colombano al Lambro
- Case D'epoca in vendita a San Colombano al Lambro
- Negozi in vendita a San Colombano al Lambro
- Complessi Misti in vendita a San Colombano al Lambro
- Capannoni in vendita a San Colombano al Lambro
- Attività Commerciali in vendita a San Colombano al Lambro
- Magazzini in vendita a San Colombano al Lambro
- Operazioni Immobiliari in vendita a San Colombano al Lambro
"Straordinari 2025", alla Fondazione Giorgio Conti l'incasso della serata
06/11/2025Come preparare la tua casa per il servizio fotografico
13/10/2025
Ultimi annunci inseriti

Casa Indipendente
San Colombano al Lambro

Villa Bifamiliare
San Colombano al Lambro

Capannone
San Colombano al Lambro

AttivitÁ Commerciale
San Colombano al Lambro

Appartamento
San Colombano al Lambro

Casa Indipendente
San Colombano al Lambro

Villa A Schiera
San Colombano al Lambro

Casa Indipendente
San Colombano al Lambro
