TRILOCALE CON DUE GIARDINI, BOX E CANTINA
- € 109.000
-
3locali
-
1bagni
-
80 m2superficie
-
40050riferimento
-
Sant'Angelo Lodigianocomune
Descrizione
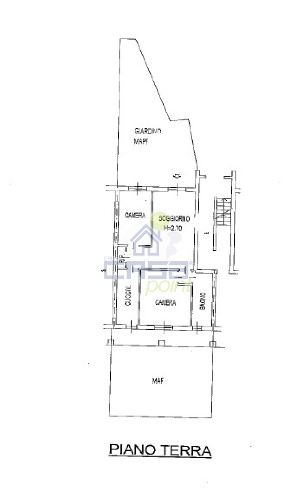
A poca distanza dal centro del paese, proponiamo in vendita luminoso trilocale al piano terra, caratterizzato da ampi spazi interni ed esterni.
L’ingresso, che risulta indipendente dal contesto condominiale, si apre su un curato cortile privato piantumato, ideale per momenti di relax all’aperto.
L’abitazione si compone di soggiorno, cucina abitabile con accesso diretto al secondo cortile sul retro, anch’esso di proprietà esclusiva, due camere da letto, bagno finestrato con doccia e un comodo ripostiglio.
A completare la proprietà , una cantina di pertinenza e un ampio box auto situato al piano interrato.
Le condizioni interne sono ottime, con sistema di aria condizionata nella zona giorno, video citofono e porta blindata.
Libero in tempi brevi e con possibilità di arredo parziale.
Soluzione ideale per chi cerca un appartamento che non necessita lavori interni, e che presenta spazi vivibili sia all’interno che all’esterno, pur restando vicino a tutti i principali servizi.
Per poter visionare senza impegno l’immobile contatta
Casapoint Sant’Angelo Lodigiano, Via Umberto I 50, Tel. 0371.216154 - Cell. 342.1389029
oppure tramite e-mail santangelolodigiano@gruppocasapoint.it
Trovi Casapoint Sant’Angelo Lodigiano anche sulle pagine FACEBOOK e INSTAGRAM sempre aggiornate con tante informazioni e novità .
Segui @casapoint_santangelolodigiano
Il presente testo ha il solo scopo illustrativo, può contenere errori e/o omissioni e non costituisce elemento contrattuale.
Dettagli Annuncio
Classe energetica
A+
A4
A3
A2
A1
A
B
C
D
E
F
G
Esente
Planimetria
Mappa
Informato per primo
- Stabili in vendita a Sant'Angelo Lodigiano
- Ville A Schiera in vendita a Sant'Angelo Lodigiano
- Ville in vendita a Sant'Angelo Lodigiano
- Appartamenti in vendita a Sant'Angelo Lodigiano
- Box in vendita a Sant'Angelo Lodigiano
- Case Indipendenti in vendita a Sant'Angelo Lodigiano
- Case Semindipendenti in vendita a Sant'Angelo Lodigiano
- Ville Quadrifamiliari in vendita a Sant'Angelo Lodigiano
- Attici in vendita a Sant'Angelo Lodigiano
- Ville Singole in vendita a Sant'Angelo Lodigiano
- Ville Bifamiliari in vendita a Sant'Angelo Lodigiano
- Ville Trifamiliari in vendita a Sant'Angelo Lodigiano
- Terreni Residenziali in vendita a Sant'Angelo Lodigiano
- Immobili Commerciali in vendita a Sant'Angelo Lodigiano
- Porzione Di Case in vendita a Sant'Angelo Lodigiano
- Attività Commerciali in vendita a Sant'Angelo Lodigiano
- Capannoni in vendita a Sant'Angelo Lodigiano
- Magazzini in vendita a Sant'Angelo Lodigiano
- Terreni Commerciali in vendita a Sant'Angelo Lodigiano
- Uffici in vendita a Sant'Angelo Lodigiano
"Straordinari 2025", alla Fondazione Giorgio Conti l'incasso della serata
06/11/2025Come preparare la tua casa per il servizio fotografico
13/10/2025
Ultimi annunci inseriti

Appartamento
Sant'Angelo Lodigiano

Appartamento
Sant'Angelo Lodigiano

Villa Singola
Sant'Angelo Lodigiano

Appartamento
Sant'Angelo Lodigiano

Villa
Sant'Angelo Lodigiano

Appartamento
Sant'Angelo Lodigiano

Appartamento
Sant'Angelo Lodigiano

Casa Indipendente
Sant'Angelo Lodigiano
