Villietta Indipendente su 4 lati con giardino e garage
- € 108.000
-
4locali
-
2bagni
-
147 m2superficie
-
39967riferimento
-
Torre de' Picenardicomune
Descrizione
A poche centinaia di metri dal centro del paese, la strada si chiude dopo poche abitazioni: è una via tranquilla, senza passaggio, dove l’unico rumore è quello dei campi che iniziano subito dopo la fine della proprietà in oggetto.
Il cancello d’ingresso introduce nel giardino che circonda interamente la casa, con qualche pianta e lo spazio necessario per muoversi agevolmente con l’auto.
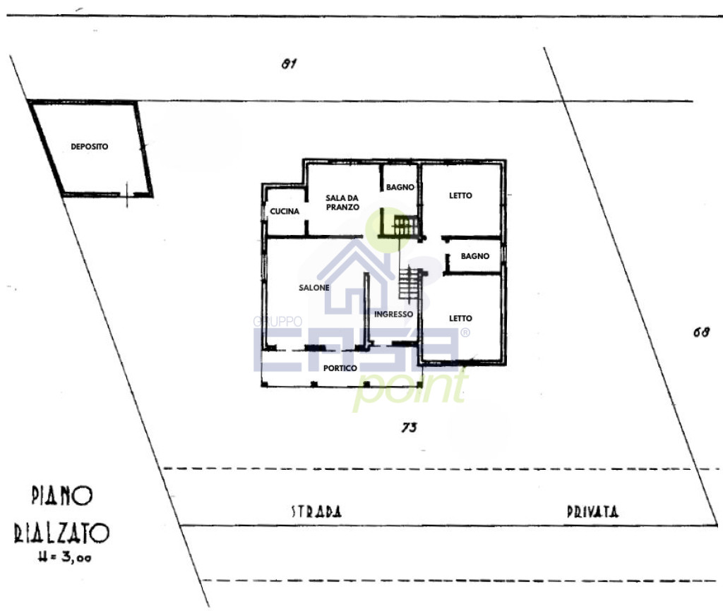
Salendo si arriva davanti all’abitazione dove troviamo un ampio porticato, semplice ma curato, dal quale si accede all’ingresso principale della casa dove a destra abbiamo la zona giorno, con un salone ampio e luminoso, la sala da pranzo, la cucina ed un bagno, mentre a sinistra si accede alla zona notte, con due stanze da letto matrimoniali ed il secondo bagno.
Una scala interna collega il piano rialzato al livello inferiore, dove si trova l’autorimessa , potenzialmente ampia abbastanza per due auto, il locale caldaia e a qualche spazio di servizio.
La casa è indipendente su quattro lati e gode di una bella vista aperta sulla campagna, un’abitazione semplice, solida e tranquilla, in una posizione che offre privacy senza essere isolata.
Il presente testo ha il solo scopo illustrativo, può contenere errori e/o omissioni e non costituisce elemento contrattuale.
Dettagli Annuncio
Classe energetica
A+
A4
A3
A2
A1
A
B
C
D
E
F
G
Esente
Planimetria
Mappa
Le nostre recensioni
Fonte: Google.comInformato per primo
- Ville in vendita a Torre de' Picenardi
- Ville Singole in vendita a Torre de' Picenardi
- Appartamenti in vendita a Torre de' Picenardi
- Case Indipendenti in vendita a Torre de' Picenardi
- Cascine in vendita a Torre de' Picenardi
- Case Semindipendenti in vendita a Torre de' Picenardi
- Negozi in vendita a Torre de' Picenardi
"Straordinari 2025", alla Fondazione Giorgio Conti l'incasso della serata
06/11/2025Come preparare la tua casa per il servizio fotografico
13/10/2025
Ultimi annunci inseriti
-medium.jpg)
Casa Indipendente
Torre de' Picenardi

Casa Indipendente
Torre de' Picenardi

Cascina
Torre de' Picenardi

Casa Indipendente
Torre de' Picenardi
-medium.jpg)
Casa Indipendente
Torre de' Picenardi

Cascina
Torre de' Picenardi

Cascina
Torre de' Picenardi

Casa Indipendente
Torre de' Picenardi
