AMPIA SOLUZIONE BIFAMILIARE – IDEALE PER FAMIGLIE NUMEROSE O PER DUE NUCLEI ABITATIVI
- € 160.000
-
5locali
-
2bagni
-
148 m2superficie
-
39886riferimento
-
Manerbiocomune
Descrizione
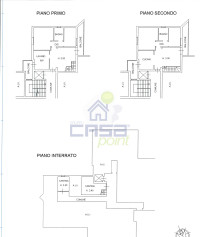
In contesto tranquillo e ben servito, proponiamo in vendita un'interessante soluzione abitativa composta da due appartamenti uniti internamente, sviluppati su due livelli e caratterizzati da ampie metrature, ottima distribuzione degli spazi interni e grande luminosità.
PIANO PRIMO – ZONA GIORNO E PRIMA ZONA NOTTE
L’ingresso apre su una spaziosa zona giorno, ariosa e ben illuminata grazie alla favorevole esposizione. L’ambiente, ideale per la vita familiare e per accogliere ospiti, è collegato a una cucina abitabile separata, con accesso diretto a un balconcino affacciato sull’interno del cortile condominiale.
Un comodo disimpegno conduce alla zona notte, composta da una camera matrimoniale ben illuminata e una camera singola attualmente adibita a stireria e ripostiglio, facilmente trasformabile in studio o cameretta.
Un bagno finestrato, completo di doccia e sanitari, con spazio sufficiente per la zona lavanderia.
PIANO INFRIORE – SECONDA UNITÀ INDIPENDENTE COLLEGATA INTERNAMENTE
Attraverso una scala interna, si accede al piano inferiore, dove è stata realizzata una seconda unità abitativa completa, perfetta per ospitare familiari, figli adulti o da utilizzare come studio professionale o spazio per ospiti.
Questa zona si compone di, soggiorno con angolo relax e cucina con ulteriore balconcino, una camera matrimoniale e una camera singola, ideale anche come studio. Secondo bagno, finestrato, ben rifinito e funzionale.
Completano le unità due box auto di proprietà, comodi per qualsiasi tipo di vettura e due cantine, perfette come deposito, dispensa o per hobby.
Contattaci per maggiori informazioni e per fissare una visita, 030/3372349 Casapoint Manerbio.
Il presente testo ha il solo scopo illustrativo, può contenere errori e/o omissioni e non costituisce elemento contrattuale.
Dettagli Annuncio
Classe energetica
A+
A4
A3
A2
A1
A
B
C
D
E
F
G
Esente
Planimetria
Mappa
Informato per primo
- Terreni Residenziali in vendita a Manerbio
- Appartamenti in vendita a Manerbio
- Ville A Schiera in vendita a Manerbio
- Ville in vendita a Manerbio
- Ville Bifamiliari in vendita a Manerbio
- Porzione Di Case in vendita a Manerbio
- Rustici E Casali in vendita a Manerbio
- Laboratori in vendita a Manerbio
- Case Semindipendenti in vendita a Manerbio
- Ville Singole in vendita a Manerbio
- Case Indipendenti in vendita a Manerbio
- Capannoni in vendita a Manerbio
- Mansarde in vendita a Manerbio
- Complessi Misti in vendita a Manerbio
- Attività Commerciali in vendita a Manerbio
- Stabili in vendita a Manerbio
- Laboratori in vendita a Manerbio
- Attici in vendita a Manerbio
Come preparare la tua casa per il servizio fotografico
13/10/2025“Gli Straordinari”, emozioni e sorrisi con Cabrini all’evento di Casapoint
30/09/2025
Ultimi annunci inseriti

Casa Semindipendente
Manerbio

Appartamento
Manerbio

Appartamento
Manerbio

Appartamento
Manerbio

Appartamento
Manerbio

Terreno Residenziale
Manerbio

Complesso Misto
Manerbio

Casa Semindipendente
Manerbio
