VILLA SINGOLA MONOPIANO
- € 155.000
- 
                                4locali
- 
                                1bagni
- 
                                131 m2superficie
- 
                                39789riferimento
- 
                                Grumello Cremonese ed Uniticomune
Descrizione
Zanengo, frazione di Grumello Cremonese immersa nel verde e nella tranquillità della campagna, a soli cinque minuti da Pizzighettone.
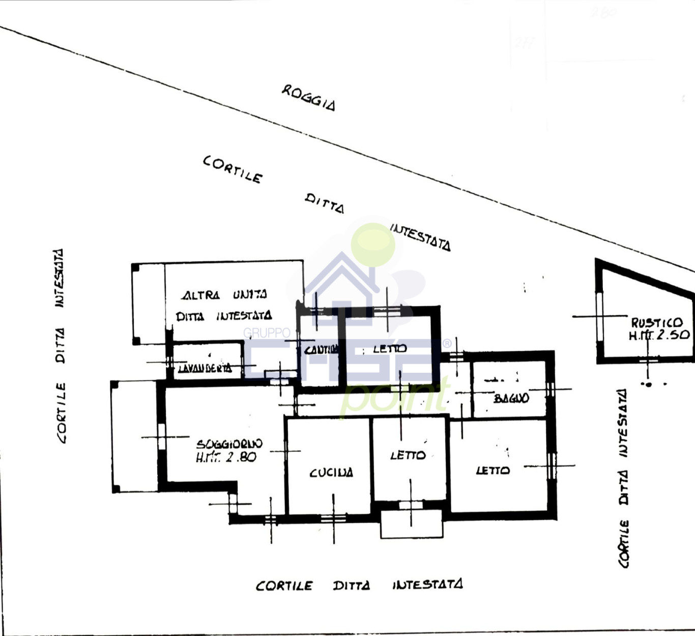
Proponiamo una VILLA SINGOLA MONOPIANO, con GIARDINO LIBERO SU QUATTRO LATI E BEN TRE STANZE DA LETTO.
Soluzione perfetta per un nucleo familiare di quattro persone alla ricerca di spazi comodi e della libertà di vivere senza scale.
L’ingresso si apre una AMPIA ZONA GIORNO CON CAMINO A LEGNA, collegata direttamente al PORTICO anteriore, ideale per pranzi e cene all’aperto. 
La CUCINA ABITABILE è separata e funzionale. 
La zona notte è composta da una CAMERA MATRIMONIALE, DUE CAMERE SINGOLE (di cui una con balconcino) e un BAGNO FINESTRATO CON VASCA.
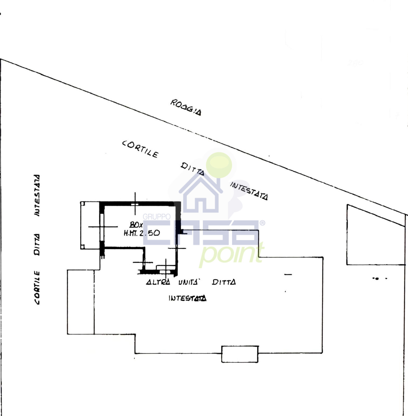
Dal soggiorno si accede direttamente al BOX AUTO, ampio e comodo, con spazio per un’auto di generose dimensioni e ulteriore area di deposito. Qui si trovano anche un LOCALE LAVANDERIA CON DOCCIA e una CANTINA.
L’abitazione è già pronta da vivere: dispone di PORTA BLINDATA, INFISSI IN LEGNO CON DOPPI VETRI, INFERIATE E ZANZARIERE su tutti i punti luce, oltre a IMPIANTI IN RAME e CALORIFERI IN GHISA. 
Una base solida, che consente a chi lo desidera di apportare ammodernamenti e miglioramenti energetici, sfruttando anche i bonus oggi disponibili.
Se per acquistare questa villa devi vendere la tua casa, affidati a noi:
siamo esperti nel gestire il cambio casa in modo sicuro e vantaggioso.
CasaPoint Pizzighettone
Via Ungheria 10 – Pizzighettone (CR)
pizzighettone@gruppocasapoint.it
0372 744 282
Il presente testo ha il solo scopo illustrativo, può contenere errori e/o omissioni e non costituisce elemento contrattuale.                        
Dettagli Annuncio
Classe energetica
A+
A4
A3
A2
A1
A
B
C
D
E
F
G
Esente
Mappa
Informato per primo
 
- Case Indipendenti in vendita a Grumello Cremonese ed Uniti
- Ville in vendita a Grumello Cremonese ed Uniti
- Appartamenti in vendita a Grumello Cremonese ed Uniti
- Cascine in vendita a Grumello Cremonese ed Uniti
- Ville Bifamiliari in vendita a Grumello Cremonese ed Uniti
- Case Semindipendenti in vendita a Grumello Cremonese ed Uniti
- Negozi in vendita a Grumello Cremonese ed Uniti
- Ville A Schiera in vendita a Grumello Cremonese ed Uniti
- Ville Singole in vendita a Grumello Cremonese ed Uniti
- Capannoni in vendita a Grumello Cremonese ed Uniti
- Magazzini in vendita a Grumello Cremonese ed Uniti
- Come preparare la tua casa per il servizio fotografico13/10/2025
- “Gli Straordinari”, emozioni e sorrisi con Cabrini all’evento di Casapoint30/09/2025
Ultimi annunci inseriti

Casa Indipendente
Grumello Cremonese ed Uniti

Capannone
Grumello Cremonese ed Uniti

Appartamento
Grumello Cremonese ed Uniti
 
                                 
                                 
                                 
                                 
                                 
                                 
                                 
                                 
                                 
                                 
                                 
                                 
                                 
                                 
                                 
                                 
                                 
                                 
                                 
                                 
                                 
                                 
                                 
                                 
                                 
                                 
                                 
                                 
                                 
                                 
                                 
                                 
                                 
                                 
                                 
                                 
                                 
                                 
                                 
                                 
                                 
                                 
                                 
                                 
                                 
                                 
                                 
                                 
                                 
                                 
                                 
                                 
                                 
                                 
                                 
                                 
                                 
                                 
                                 
                                 
                                 
                                 
                                 
                                