Villa tutta ad un piano
- € 300.000
-
4locali
-
3bagni
-
200 m2superficie
-
39670riferimento
-
Gualtiericomune
Descrizione
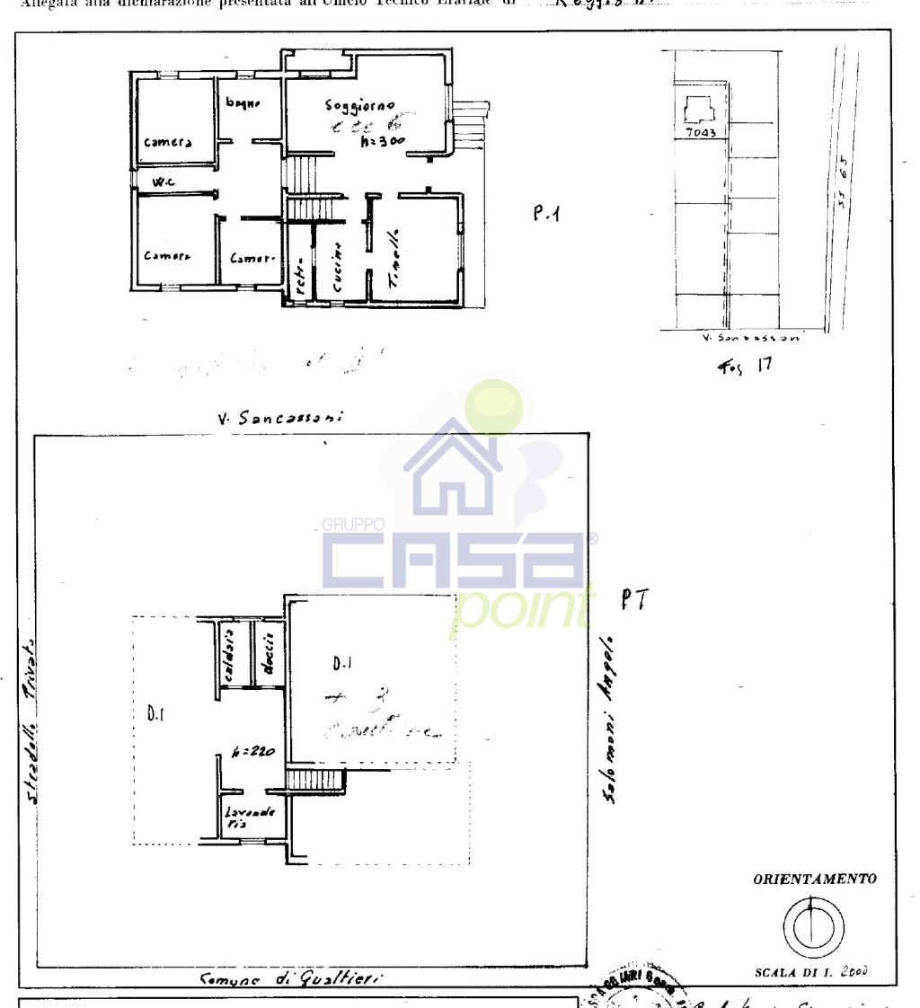
Questa splendida villa ristrutturata è ideale per chi cerca una casa già pronta da vivere senza dover affrontare lavori, si trova in una tranquilla strada privata di Gualtieri, lontana dal traffico e dal caos. Perfetta per chi desidera godersi la comodità di uno spazio ampio e funzionale in un contesto riservato, offre una combinazione vincente di comfort e praticità, adatta a famiglie o a chi predilige ambienti generosi e ben organizzati.
Entrando, si viene accolti da un’ampia sala luminosa con balcone, sulla sinistra si apre una cucina spaziosa, collegata alla sala da pranzo dove una scala a chiocciola conduce alla soffitta, uno spazio versatile che può diventare una zona studio o un ripostiglio.
Qualche gradino più in alto si trova la zona notte, composta da tre camere da letto ampie e due bagni: uno grande, dotato di vasca da bagno, e un secondo bagno più piccolo.
Al piano sotto, a completare la praticità della casa, si trovano una lavanderia con bagno dotato di box doccia, una cantina e un ampio garage per due posti auto.
All’esterno, il giardino si sviluppa su quattro lati ed è impreziosito da un posto auto scoperto e uno spazio laterale ideale per organizzare barbecue o sistemare una tettoia, perfetto per chi ama trascorrere tempo all’aperto in totale privacy.
La villa si presenta in ottime condizioni ed è dotata di numerosi impianti e comfort che garantiscono elevata qualità abitativa, sicurezza e risparmio energetico.
Caratteristiche e dotazioni principali:
Impianto fotovoltaico da 5 kW con incentivo di € 2.500 annui per 5 anni,
Impianto di riscaldamento a biomassa, che serve l’intera abitazione tramite stufa a pellet collegata all’impianto di riscaldamento
Impianto idraulico completamente nuovo
Isolamento del tetto con coibentazione da 8 cm
Addolcitore
Impianto di antifurto
Impianto di irrigazione automatico
Impianto crepuscolare esterno
Portoni sezionali automatici
Cancello carraio automatico
Tapparelle nuove in alluminio coibentato
Pavimentazione in parquet di rovere chiaro nelle zone dove presente
Questa soluzione è ideale per chi desidera un’abitazione indipendente, tecnologicamente avanzata e già pronta da abitare, con interventi strutturali e impiantistici già realizzati.
Ricordate che ogni immobile venduto dalla nostra agenzia, Casapoint Boretto, è garantito come esente da problemi urbanistico-catastali. Questo significa che chi lo acquista potrà arrivare sereno al rogito, protetto da sanzioni e vendite che saltano, senza il rischio di contestazioni future.
Se siete interessati a saperne di più su questo immobile potete mandare un messaggio su WhatsApp al numero 3477392200, indicandoci il numero di riferimento dell'annuncio 39670. Oppure potete chiamarci allo 0522964398.
Il presente testo ha il solo scopo illustrativo, può contenere errori e/o omissioni e non costituisce elemento contrattuale.
Il presente testo ha il solo scopo illustrativo, può contenere errori e/o omissioni e non costituisce elemento contrattuale.
Dettagli Annuncio
Classe energetica
A+
A4
A3
A2
A1
A
B
C
D
E
F
G
Esente
Planimetria
Mappa
Le nostre recensioni
Fonte: Google.comInformato per primo
- Case Indipendenti in vendita a Gualtieri
- Appartamenti in vendita a Gualtieri
- Case Semindipendenti in vendita a Gualtieri
- Complessi Misti in vendita a Gualtieri
- Ville A Schiera in vendita a Gualtieri
- Uffici in vendita a Gualtieri
- Porzione Di Case in vendita a Gualtieri
- Bar in vendita a Gualtieri
- Rustici E Casali in vendita a Gualtieri
"Straordinari 2025", alla Fondazione Giorgio Conti l'incasso della serata
06/11/2025Come preparare la tua casa per il servizio fotografico
13/10/2025
Ultimi annunci inseriti

Appartamento
Gualtieri

Casa Indipendente
Gualtieri

Casa Semindipendente
Gualtieri

Porzione Di Casa
Gualtieri

Casa Indipendente
Gualtieri

Casa Semindipendente
Gualtieri

Casa Semindipendente
Gualtieri

Casa Semindipendente
Gualtieri
