Casale da Ristrutturare
- € 30.000
-
locali
-
Nessunobagni
-
130 m2superficie
-
39625riferimento
-
Gualtiericomune
Descrizione
Casapoint, vi propone Immerso nella quiete della campagna, questo casale che rappresenta l'opportunità ideale per chi desidera costruire una casa partendo da zero, personalizzando ogni dettaglio secondo i propri gusti ed esigenze.
Da ristrutturare completamente, offre il fascino autentico delle strutture d’epoca e la libertà di trasformarlo in un'abitazione unica e su misura.
Ricordate che ogni immobile venduto dalla nostra agenzia, Casapoint Boretto, è garantito come esente da problemi urbanistico-catastali. Questo significa che chi lo acquista potrà arrivare sereno al rogito, protetto da sanzioni e vendite che saltano, senza il rischio di contestazioni future.
Se siete interessati a saperne di più su questo immobile potete mandare un messaggio su WhatsApp al numero 3477392200, indicandoci il numero di riferimento dell'annuncio 39625. Oppure potete chiamarci allo 0522964398.
Il presente testo ha il solo scopo illustrativo, può contenere errori e/o omissioni e non costituisce elemento contrattuale.
Il presente testo ha il solo scopo illustrativo, può contenere errori e/o omissioni e non costituisce elemento contrattuale.
Dettagli Annuncio
Classe energetica
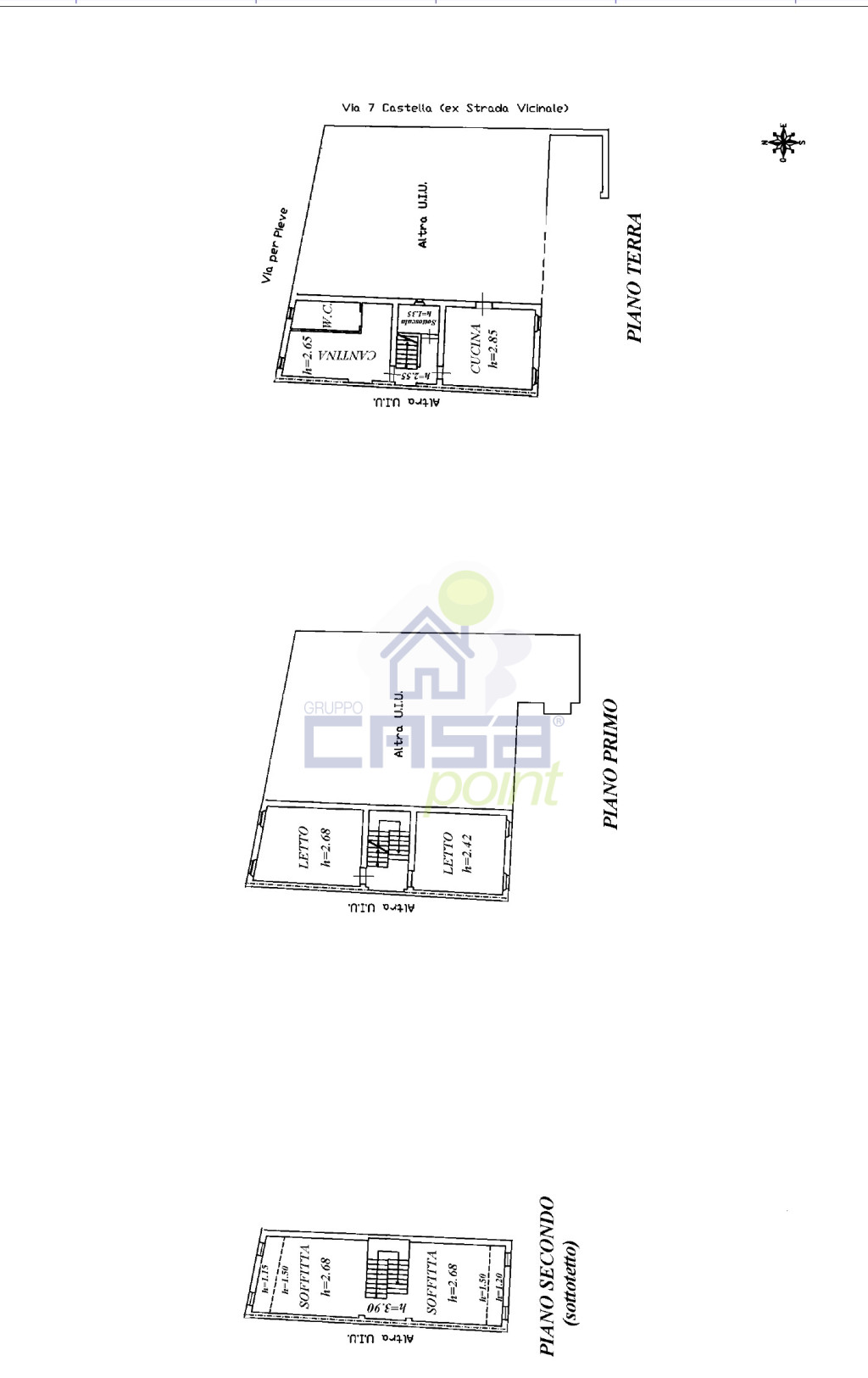
Planimetria
Mappa
Informato per primo
- Case Indipendenti in vendita a Gualtieri
- Appartamenti in vendita a Gualtieri
- Case Semindipendenti in vendita a Gualtieri
- Complessi Misti in vendita a Gualtieri
- Ville A Schiera in vendita a Gualtieri
- Uffici in vendita a Gualtieri
- Magazzini in vendita a Gualtieri
- Bar in vendita a Gualtieri
- Rustici E Casali in vendita a Gualtieri
"Straordinari 2025", alla Fondazione Giorgio Conti l'incasso della serata
06/11/2025Come preparare la tua casa per il servizio fotografico
13/10/2025
Ultimi annunci inseriti

Casa Semindipendente
Gualtieri

Casa Indipendente
Gualtieri

Casa Indipendente
Gualtieri

Casa Semindipendente
Gualtieri

Casa Indipendente
Gualtieri
-medium.jpg)
Casa Semindipendente
Gualtieri

Appartamento
Gualtieri
-medium.jpg)
Appartamento
Gualtieri
