INVESTIMENTO IDEALE NEL CUORE DEL PAESE -AMBULATORIO CON SPAZI TRASFORMABILI
- € 85.000
-
4locali
-
3bagni
-
182 m2superficie
-
39473riferimento
-
Manerbiocomune
Descrizione
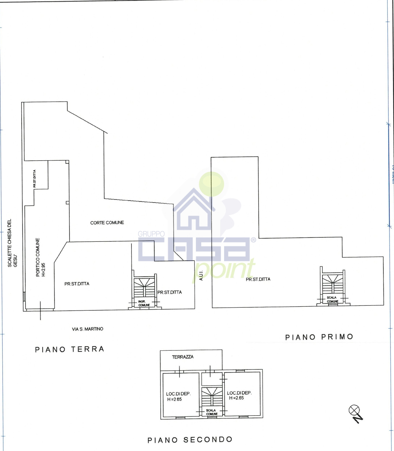
In pieno centro paese, proponiamo ambulatorio medico disposto su più livelli, ideale per professionisti e investitori alla ricerca di una soluzione versatile.
Il piano terra è attualmente adibito ad ambulatorio medico, con spazi funzionali e ben organizzati dotati di tre comodi servizi , adatti a diverse attività sanitarie o professionali.
Al piano superiore si trovano stanze allo stato rustico, che rappresentano un’importante opportunità di valorizzazione: gli ambienti possono essere utilizzati come deposito o archivio, previa verifica delle normative vigenti. La distribuzione degli spazi consente ampia personalizzazione in base alle proprie esigenze.
La posizione centrale garantisce massima visibilità, comodità ai servizi e facilità di accesso, rendendo l’immobile particolarmente interessante sia per uso diretto sia come investimento.
Soluzione ideale per chi desidera unire attività professionale e sviluppo immobiliare in un’unica proprietà.
Per info e visite contattaci allo 030/3372349 oppure inviaci una mail : manerbio@gruppocasapoint.it
Il presente testo ha il solo scopo illustrativo, può contenere errori e/o omissioni e non costituisce elemento contrattuale.
Dettagli Annuncio
Classe energetica
A+
A4
A3
A2
A1
A
B
C
D
E
F
G
Esente
Planimetria
Mappa
Le nostre recensioni
Fonte: Google.comInformato per primo
- Terreni Residenziali in vendita a Manerbio
- Appartamenti in vendita a Manerbio
- Ville A Schiera in vendita a Manerbio
- Ville in vendita a Manerbio
- Ville Bifamiliari in vendita a Manerbio
- Porzione Di Case in vendita a Manerbio
- Rustici E Casali in vendita a Manerbio
- Laboratori in vendita a Manerbio
- Case Semindipendenti in vendita a Manerbio
- Ville Singole in vendita a Manerbio
- Case Indipendenti in vendita a Manerbio
- Capannoni in vendita a Manerbio
- Mansarde in vendita a Manerbio
- Complessi Misti in vendita a Manerbio
- Attività Commerciali in vendita a Manerbio
- Stabili in vendita a Manerbio
- Laboratori in vendita a Manerbio
- Immobili Commerciali in vendita a Manerbio
"Straordinari 2025", alla Fondazione Giorgio Conti l'incasso della serata
06/11/2025Come preparare la tua casa per il servizio fotografico
13/10/2025
Ultimi annunci inseriti

Appartamento
Manerbio

Casa Indipendente
Manerbio

Appartamento
Manerbio

Villa A Schiera
Manerbio

Appartamento
Manerbio

Appartamento
Manerbio

Negozi
Manerbio

Appartamento
Manerbio
