Villa indipendente con due box e giardino.
- € 310.000
- 
                                4locali
- 
                                3bagni
- 
                                209 m2superficie
- 
                                39165riferimento
- 
                                Corte de' Cortesi con Cignonecomune
Descrizione
Immersa nel verde e nella tranquillità della campagna cremonese, proponiamo in vendita una soluzione immobiliare indipendente, perfetta per chi cerca spazi comodi e un'oasi di pace.
La bellezza di questa villa dona la possibilità di spaziare e creare l'abitazione dei propri sogni; disposta su un unico piano tutta la parte abitativa principale. Entrando in casa ti senti subito accolto dall'ampio soggiorno e dalla cucina abitabile che sono serviti da porticati e aree relax esterne, un comodo disimpegno ti accompagna nella zona notte dove le tre camere da letto ed i doppi servizi rendono il tutto molto comodo ed accogliente. 
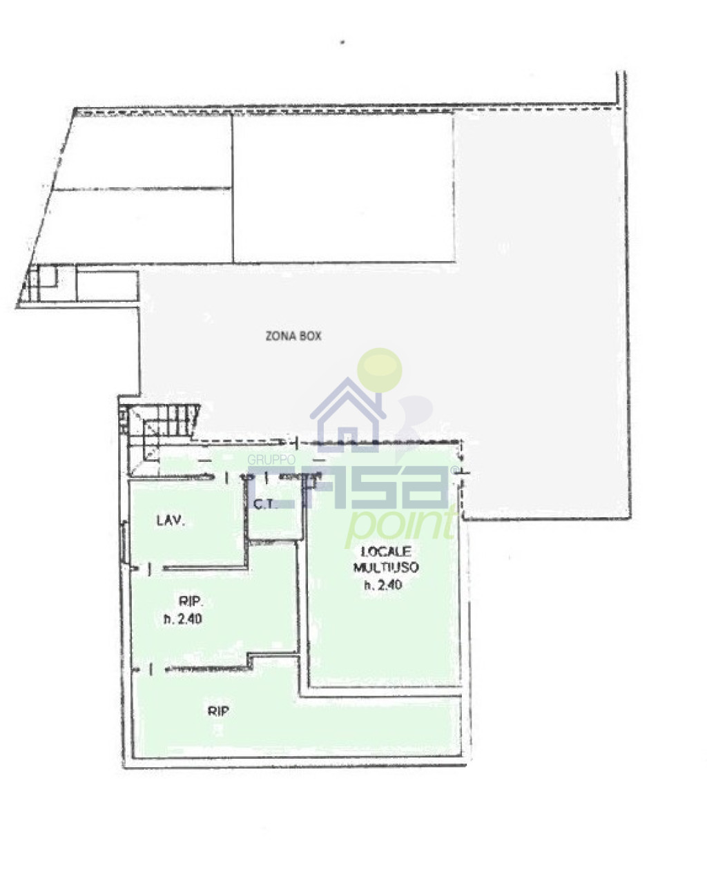
Nel piano interrato: il grande locale accessorio, perfetto per diverse funzioni a seconda delle esigenze, la lavanderia ideale per avere sempre la casa in ordine ed due ampi box auto
Completano la proprietà il grande giardino nella parte frontale della casa, che offre il luogo ideale per momenti di relax o convivialità; vi sono, inoltre, due cortili laterali, perfetti per godersi la bella stagione o per organizzare eventi all'aperto.
L'immobile è dotato di un pozzo per uso giardino e domestico (è comunque presente l'attacco comunale), e di un impianto fotovoltaico da 6 Kw
Ideale per famiglie numerose o per chi desidera uno stile di vita a contatto con la natura.
Prenota ora la tua visita all'immobile: CasaPoint Cremona 2 Viale Trento Trieste 39 - tel. 0372/803642 cell. 345/2838183 mail: cremonadue@gruppocasapoint.it.
PER ACQUISTARE QUESTA CASA, DEVI VENDERE LA TUA? CONTATTACI, TI GUIDEREMO PER UNA VENDITA SICURA E VELOCE.
Il presente testo ha il solo scopo illustrativo, può contenere errori e/o omissioni e non costituisce elemento contrattuale.                        
Dettagli Annuncio
Classe energetica
A+
A4
A3
A2
A1
A
B
C
D
E
F
G
Esente
Planimetria
Mappa
Le nostre recensioni
Fonte: Google.comInformato per primo
 
- Case Indipendenti in vendita a Corte de' Cortesi con Cignone
- Appartamenti in vendita a Corte de' Cortesi con Cignone
- Porzione Di Case in vendita a Corte de' Cortesi con Cignone
- Ville in vendita a Corte de' Cortesi con Cignone
- Ville A Schiera in vendita a Corte de' Cortesi con Cignone
- Cascine in vendita a Corte de' Cortesi con Cignone
- Come preparare la tua casa per il servizio fotografico13/10/2025
- “Gli Straordinari”, emozioni e sorrisi con Cabrini all’evento di Casapoint30/09/2025
Ultimi annunci inseriti

Cascina
Corte de' Cortesi con Cignone

Casa Indipendente
Corte de' Cortesi con Cignone

Porzione Di Casa
Corte de' Cortesi con Cignone

Porzione Di Casa
Corte de' Cortesi con Cignone
 
                                 
                                 
                                 
                                 
                                 
                                 
                                 
                                 
                                 
                                 
                                 
                                 
                                 
                                 
                                 
                                 
                                 
                                 
                                 
                                 
                                 
                                 
                                 
                                 
                                 
                                 
                                 
                                 
                                 
                                 
                                 
                                 
                                 
                                 
                                 
                                 
                                 
                                 
                                 
                                 
                                 
                                 
                                 
                                 
                                 
                                 
                                 
                                 
                                 
                                 
                                 
                                 
                                 
                                 
                                 
                                 
                                 
                                 
                                 
                                 
                                 
                                 
                                 
                                 
                                 
                                 
                                 
                                 
                                 
                                 
                                 
                                 
                                 
                                 
                                 
                                 
                                 
                                 
                                 
                                 
                                 
                                 
                                 
                                 
                                 
                                 
                                 
                                 
                                     
                                     
                                     
                                    