Ampia casa con giardino, mansarda e spazi accessori
- € 150.000
-
4locali
-
2bagni
-
160 m2superficie
-
38903riferimento
-
Gualtiericomune
Descrizione
A Galtieri, in una zona immersa nel verde e lontana dal traffico, proponiamo una casa indipendente su tre lati, perfetta per chi desidera spazio, riservatezza e contatto con la natura. Questa soluzione è l’ideale per famiglie numerose o per chi cerca una casa da personalizzare secondo le proprie esigenze, con ampi margini di miglioramento e spazi versatili da vivere ogni giorno.
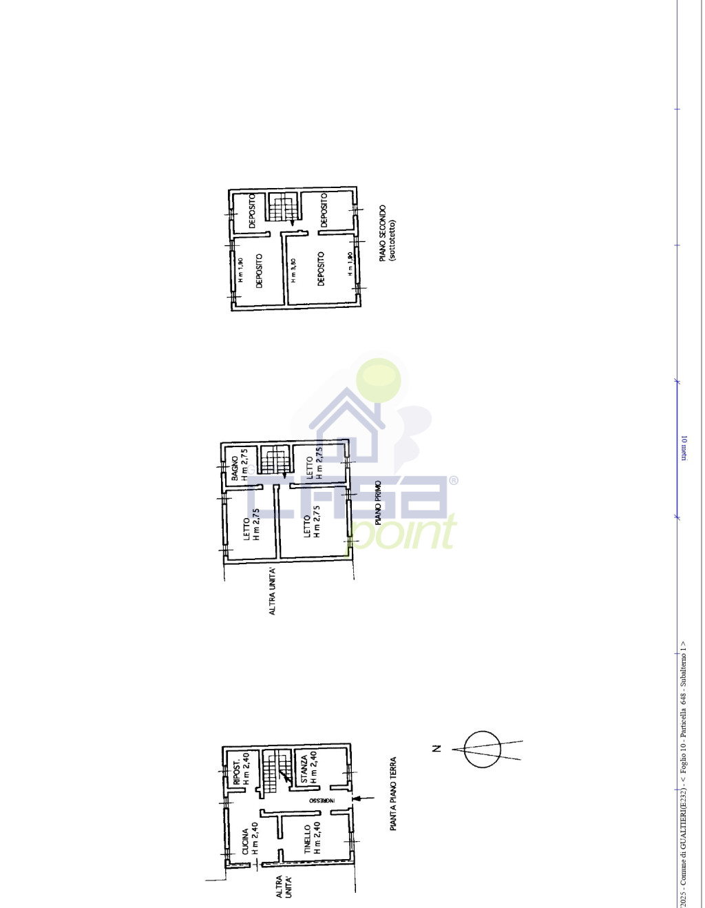
L’ingresso si apre su un ampio cortile privato che accompagna all’abitazione, al doppio garage e al basso servizio, ottimo per chi ha più auto o per chi necessita di spazio extra le attrezzature. Al piano terra troviamo ambienti funzionali già distinti: una comoda lavanderia con bagno e una zona al grezzo che si presta a essere adattata per ulteriori usi. Sempre sullo stesso livello, la cucina abitabile, la sala da pranzo e il salotto offrono spazi ben distribuiti per la vita quotidiana.
Salendo al primo piano, la zona notte è composta da due ampie camere matrimoniali, una cameretta e un secondo bagno. Gli spazi sono luminosi e ben distribuiti. Il sottotetto, attualmente al grezzo ma con altezze abitabili, rappresenta un interessante potenziale per chi desidera ricavare un ambiente aggiuntivo da sfruttare nella quotidianità.
La casa è potenzialmente abitabile da subito, ma con piccoli interventi di ristrutturazione si può valorizzare ulteriormente. Una proposta solida e completa, perfetta per chi cerca una casa da vivere appieno, con tutto lo spazio che serve.
Ricordate che ogni immobile venduto dalla nostra agenzia, Casapoint Boretto, è garantito come esente da problemi urbanistico-catastali. Questo significa che chi lo acquista potrà arrivare sereno al rogito, protetto da sanzioni e vendite che saltano, senza il rischio di contestazioni future.
Se siete interessati a saperne di più su questo immobile potete mandare un messaggio su WhatsApp al numero 3477392200, indicandoci il numero di riferimento dell'annuncio 38903. Oppure potete chiamarci allo 0522964398.
Il presente testo ha il solo scopo illustrativo, può contenere errori e/o omissioni e non costituisce elemento contrattuale.
Il presente testo ha il solo scopo illustrativo, può contenere errori e/o omissioni e non costituisce elemento contrattuale.
Dettagli Annuncio
Classe energetica
A+
A4
A3
A2
A1
A
B
C
D
E
F
G
Esente
Planimetria
Mappa
Le nostre recensioni
Fonte: Google.comInformato per primo
- Case Indipendenti in vendita a Gualtieri
- Appartamenti in vendita a Gualtieri
- Case Semindipendenti in vendita a Gualtieri
- Complessi Misti in vendita a Gualtieri
- Ville A Schiera in vendita a Gualtieri
- Uffici in vendita a Gualtieri
- Porzione Di Case in vendita a Gualtieri
- Bar in vendita a Gualtieri
- Rustici E Casali in vendita a Gualtieri
"Straordinari 2025", alla Fondazione Giorgio Conti l'incasso della serata
06/11/2025Come preparare la tua casa per il servizio fotografico
13/10/2025
Ultimi annunci inseriti

Appartamento
Gualtieri

Casa Indipendente
Gualtieri

Casa Semindipendente
Gualtieri

Porzione Di Casa
Gualtieri

Casa Indipendente
Gualtieri

Casa Indipendente
Gualtieri

Casa Semindipendente
Gualtieri

Casa Semindipendente
Gualtieri
