CASA INDIPENDENTE CON AREA ESTERNA ESCLUSIVA A DUE PASSI DAL CENTRO DEL PAESE
- € 104.000
-
5locali
-
1bagni
-
195 m2superficie
-
26139riferimento
-
Sant'Angelo Lodigianocomune
Descrizione
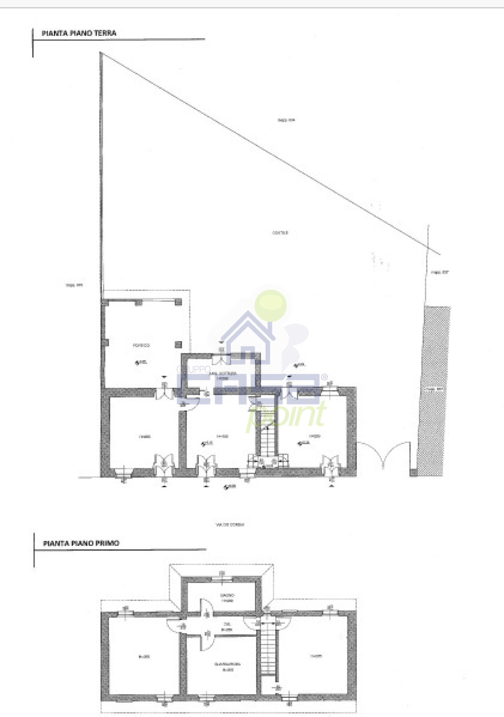
Via dei Cordai 50, Sant'Angelo Lodigiano.
A due passi dal cuore del paese, ecco a voi questa casa indipendente sviluppata su 2 livelli e con area esterna esclusiva sul retro di 200mq. L'abitazione, DA PERSONALIZZARE, presenta al piano terra l'angolo cottura, 3 locali e il portico.
Al piano primo troviamo altri due locali, il ripostiglio, il guardaroba e il bagno.
Ideale per nuclei familiari numerosi e per chi cerca una soluzione libera subito.
Per poter visionare senza impegno l’immobile contatta
Casapoint Sant’Angelo Lodigiano, Via Umberto I 50, Tel. 0371.216154 - Cell. 342.1389029
oppure tramite e-mail santangelolodigiano@gruppocasapoint.it
Trovi Casapoint Sant’Angelo Lodigiano anche sulle pagine FACEBOOK e INSTAGRAM sempre aggiornate con tante informazioni e novità.
Segui @casapoint_santangelolodigiano
Il presente testo ha il solo scopo illustrativo, può contenere errori e/o omissioni e non costituisce elemento contrattuale.
Dettagli Annuncio
Classe energetica
A+
A4
A3
A2
A1
A
B
C
D
E
F
G
Esente
Planimetria
Mappa
Informato per primo
- Stabili in vendita a Sant'Angelo Lodigiano
- Ville A Schiera in vendita a Sant'Angelo Lodigiano
- Ville in vendita a Sant'Angelo Lodigiano
- Appartamenti in vendita a Sant'Angelo Lodigiano
- Box in vendita a Sant'Angelo Lodigiano
- Case Indipendenti in vendita a Sant'Angelo Lodigiano
- Case Semindipendenti in vendita a Sant'Angelo Lodigiano
- Ville Quadrifamiliari in vendita a Sant'Angelo Lodigiano
- Attici in vendita a Sant'Angelo Lodigiano
- Ville Singole in vendita a Sant'Angelo Lodigiano
- Ville Bifamiliari in vendita a Sant'Angelo Lodigiano
- Ville Trifamiliari in vendita a Sant'Angelo Lodigiano
- Terreni Residenziali in vendita a Sant'Angelo Lodigiano
- Immobili Commerciali in vendita a Sant'Angelo Lodigiano
- Porzione Di Case in vendita a Sant'Angelo Lodigiano
- Attività Commerciali in vendita a Sant'Angelo Lodigiano
- Capannoni in vendita a Sant'Angelo Lodigiano
- Magazzini in vendita a Sant'Angelo Lodigiano
- Terreni Commerciali in vendita a Sant'Angelo Lodigiano
- Uffici in vendita a Sant'Angelo Lodigiano
"Straordinari 2025", alla Fondazione Giorgio Conti l'incasso della serata
06/11/2025Come preparare la tua casa per il servizio fotografico
13/10/2025
Ultimi annunci inseriti

Casa Indipendente
Sant'Angelo Lodigiano

Appartamento
Sant'Angelo Lodigiano

Appartamento
Sant'Angelo Lodigiano

Appartamento
Sant'Angelo Lodigiano

Appartamento
Sant'Angelo Lodigiano

Villa Singola
Sant'Angelo Lodigiano

Appartamento
Sant'Angelo Lodigiano

Appartamento
Sant'Angelo Lodigiano
