Casa Indipendente a San Girolamo
- € 59.000
-
locali
-
3bagni
-
145 m2superficie
-
17877riferimento
-
Guastallacomune
Descrizione
A San Girolamo, per chi è alla ricerca di tranquillità e pace, proponiamo casa indipendente con ampio giardino di circa 3000mq, da ristrutturare, ultimare e personalizzare a piacere.
La struttura si sviluppa su 3 livelli;
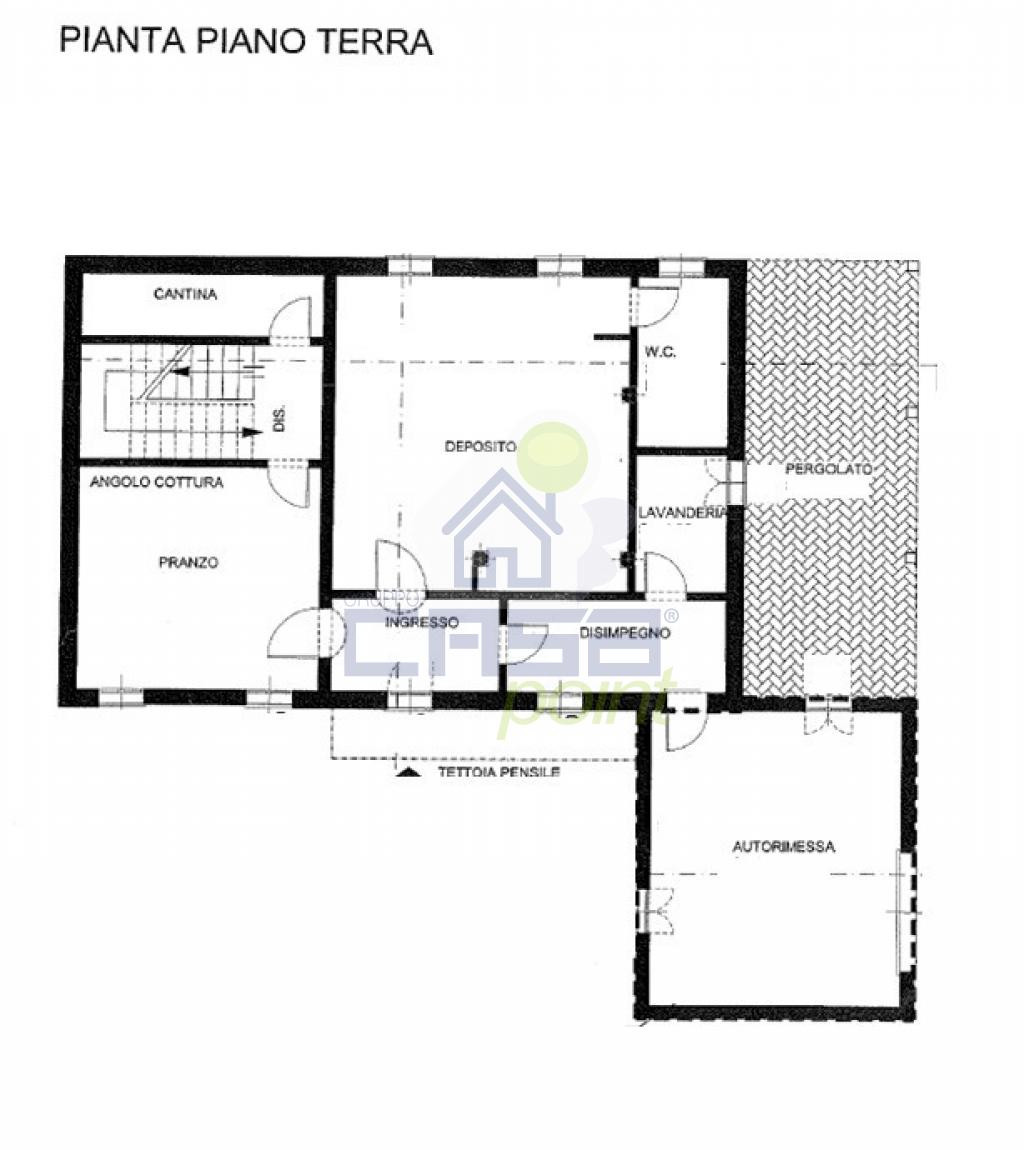
Piano terra: Ampio spazio adibibile a soggiorno, bagno, lavanderia e infine spazio per cucina e sala da pranzo.
Piano Primo: Disimpegno, bagno e quattro stanze destinabili a camere da letto.
Piano secondo: Mansarda spaziosa e facilmente adattabile ad ogni esigenza.
Non farti scappare l'occasione di personalizzare la casa dei tuoi sogni!
Per maggiori informazioni e/o fissare appuntamento potete rivolgervi alla nostra agenzia di via Gonzaga 19, o contattarci al 0522 570056 e via WhatsApp al 340 9994217.
Il presente testo ha il solo scopo illustrativo, può contenere errori e/o omissioni e non costituisce elemento contrattuale.
Dettagli Annuncio
Classe energetica
Planimetria
Mappa
Informato per primo
- Uffici in vendita a Guastalla
- Appartamenti in vendita a Guastalla
- Case Indipendenti in vendita a Guastalla
- Case Semindipendenti in vendita a Guastalla
- Ville in vendita a Guastalla
- Immobili Commerciali in vendita a Guastalla
- Box in vendita a Guastalla
- Terreni Residenziali in vendita a Guastalla
- Mansarde in vendita a Guastalla
- Bar in vendita a Guastalla
- Complessi Misti in vendita a Guastalla
- Capannoni in vendita a Guastalla
- Ville Bifamiliari in vendita a Guastalla
- Ville Singole in vendita a Guastalla
- Ville A Schiera in vendita a Guastalla
- Case D'epoca in vendita a Guastalla
- Attività Commerciali in vendita a Guastalla
- Altri E Alimentari in vendita a Guastalla
- Ristoranti in vendita a Guastalla
- Rustici E Casali in vendita a Guastalla
- Negozi in vendita a Guastalla
- Licenze Commerciali in vendita a Guastalla
"Straordinari 2025", alla Fondazione Giorgio Conti l'incasso della serata
06/11/2025Come preparare la tua casa per il servizio fotografico
13/10/2025
Ultimi annunci inseriti
-medium.jpg)
Appartamento
Guastalla
-medium.jpg)
Licenza Commerciale
Guastalla
-medium.jpg)
Appartamento
Guastalla

Ufficio
Guastalla
-medium.jpg)
Casa Semindipendente
Guastalla
-medium.jpg)
Complesso Misto
Guastalla

Casa Indipendente
Guastalla
-medium.jpg)
Appartamento
Guastalla
